Eladó családi ház Budapest XV. ker 130 000 000 Ft

Leírás

KIVÉTELES ADOTTSÁGÚ IKERHÁZ REFERENCIÁVAL RENDELKEZŐ BERUHÁZÓTÓL A KIÍRT ÁRON KULCSRAKÉSZEN!

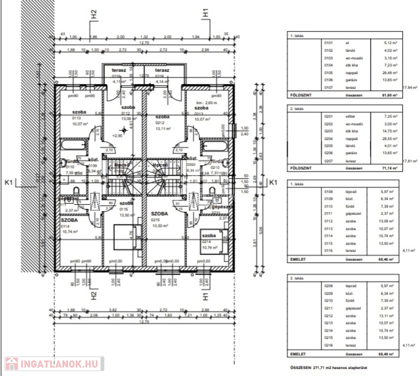
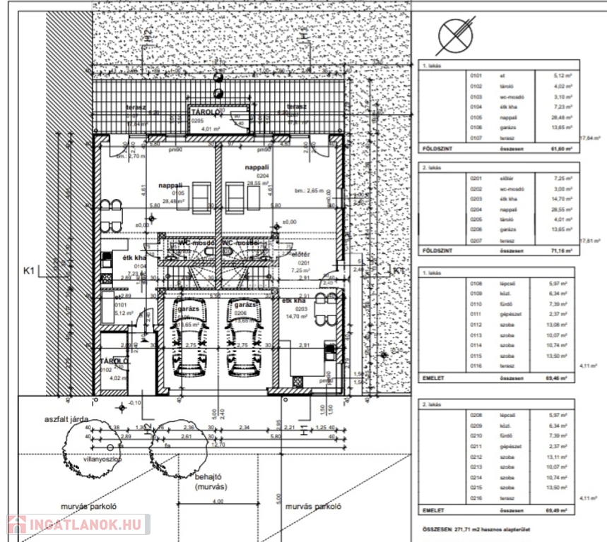
XV. kerület hangulatos kertvárosában, tömegközlekedési eszközök, közintézmények és számos szolgáltatás gyűrűjében kínálok eladásra, egy kitűnő adottságú, 350 m2 -es telken elhelyezkedő, 2025-ös építésű, két szintes, dupla komfortos, magas műszaki tartalommal rendelkező ikerházat.

Pillanatnyilag a ház mindkét lakása elérhető, amik az utcáról, egymástól elszeparáltan megközelíthetőek.

Az 1 lakás 130 m2 alapterülettel, a földszinten garázzsal,wc-vel ,amerikai konyhás-nappalival, az emeleten pedig 4 hálószobával + fürdőszobával került kialakításra.

A 2 lakás nagyobb kertkapcsolattal, 141 m2 alapterülettel, földszinten garázzsal,wc-vel ,amerikai konyhás-nappalival, az emeleten pedig 4 hálószobával + fürdőszobával került kialakításra.


A jelenlegi készültségi állapot lehető teszi, hogy a belső tartalom a vevő igényeihez legyen igazítva.
A tulajdonos a hideg és meleg burkolatokat 10 ezer, a szanitereket 400 ezer, a beltéri ajtókat 100 ezer forintos összeghatárig biztosítja, magasabb vevői igény a különbözet megfizetése után lehetséges.

Az ingatlan megtekinthető a hét bármely napján!
Várom a hívását, akár hétvégén is!

B.Cs.

Családi ház részletei

Ár: 130 000 000 Ft
Méret: 130 négyzetméter
Azonosító: 11577945
Irodai azonosító: 389333
Cím: Árvavár utca
Telek: 720 négyzetméter
Ingatlan állapota: Kitűnő
Jelleg: ikerház
Építőanyag: Tégla
Fűtés jellege: Cirkó
Fűtés módja: Gáz
Komfort fokozat: Dupla komfort
Kor: Új építésű
Szintek száma: 1 szint
Egész szobák: 5

Egyéb jellemzők

  • Csatorna
  • Garázs
  • Pince
  • Terasz

Térkép

Hasonló családi ház hirdetések

Eladó családi ház

Budapest XV. ker

Rákospalotán 2-3 generációnak is alkalmas, 225 nm-es, 2 szintes, alsó ...

Eladó családi ház

Budapest XV. ker

A XV.KERÜLETBEN: CSENDES KERTVÁROSI KÖRNYEZETBEN, ÚJ ÉPÍTÉSŰ, AMERIKAI ...

Eladó családi ház

Budapest XV. ker

XV. KERÜLETBEN: CSALÁDI HÁZAS RÉSZEN ELADÓ EGY 110 M2, AMERIKAI KONYHÁS ...

Eladó családi ház

Budapest XV. ker

Eladó a 15. kerület főútvonalán egy 348nm telken elhelyezkedő családi ...

Hasonló családi ház hirdetések

Eladó családi ház

Budapest XV. ker

Rákospalotán 2-3 generációnak is alkalmas, 225 nm-es, 2 szintes, alsó ...

Eladó családi ház

Budapest XV. ker

A XV.KERÜLETBEN: CSENDES KERTVÁROSI KÖRNYEZETBEN, ÚJ ÉPÍTÉSŰ, AMERIKAI ...

Eladó családi ház

Budapest XV. ker

XV. KERÜLETBEN: CSALÁDI HÁZAS RÉSZEN ELADÓ EGY 110 M2, AMERIKAI KONYHÁS ...

Eladó családi ház

Budapest XV. ker

Eladó a 15. kerület főútvonalán egy 348nm telken elhelyezkedő családi ...