Eladó családi ház Máriakéménd 83 900 000 Ft

Leírás

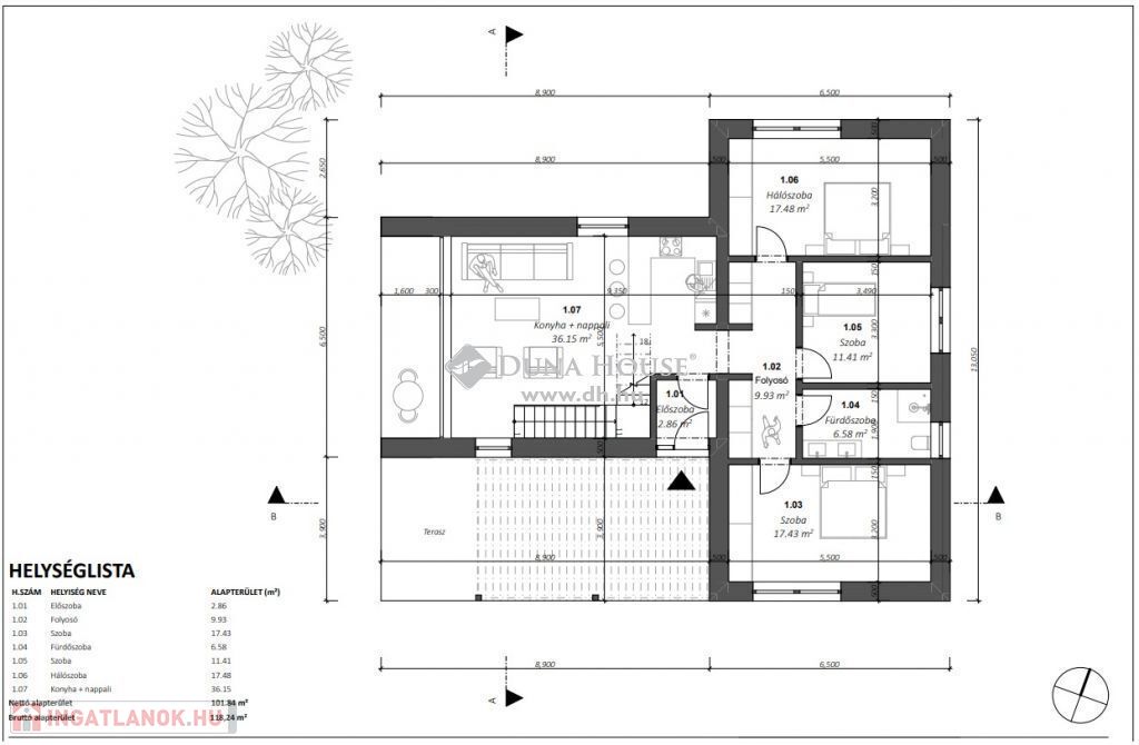
Máriakéménden újonnan épülő tóparti egy szintes ház eladó.Az ingatlan 118m2 , 3 hálószoba+nappali-konyha étkezős, padlófűtéses, egy kisebb és egy nagyobb terasszal, autóbeállóval . A nappalijából nyíló terasz tópartra néz.Jelen építkezési fázisban még könnyen saját igényre formálható.A lakóparkban összesen 5 ház épül.Bővebb információért keressen bizalommal akár hétvégén is.

Referencia szám: HZ067868-NOK

Családi ház részletei

Ár: 83 900 000 Ft
Méret: 118 négyzetméter
Azonosító: 11583475
Irodai azonosító: HZ067868-4677492
Telek: 500 négyzetméter
Ingatlan állapota: Épülő
Jelleg: családi ház
Építőanyag: Könnyűszerkezetes
Fűtés jellege: Villany
Fűtés módja: Hőszivattyú
Kor: Új építésű
Szintek száma: Földszintes
Egész szobák: 4

Egyéb jellemzők

  • Garázs

Térkép