Eladó családi ház Sülysáp 70 000 000 Ft

Leírás

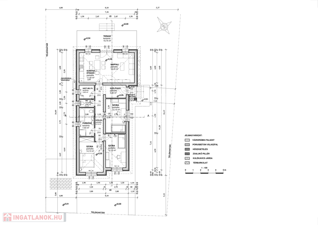
Sülysápon a Határ úton , 874m2-es telken nettó 92,68 m2-es három szoba + amerikai konyhás nappalival rendelkező, energiahatékony családi házak eladók, számos referenciával rendelkező kivitelezőtől!

A Határ út Sülysáp Kóka felőli utolsó utcája, mégis közel van a központhoz. A telekről csodálataos panoráma nyílik a mögötte elhelyezkedő szántóra és az erdőre.

A tartószerkezeti falak Porotherm P30N+F téglából, betonkoszorúval, fa födémes tetőszerkezettel készülnek. A lábazat 10 cm polisztirol lépésálló, a homlokzatok 10cm-es Austrotherm Grafitos, a vízszintes födém 25 cm ásványgyapot szigeteléssel lesz ellátva.

Három rétegű üvegekkel szerelt, hat légkamrás műanyag thermo nyílászárók kerülnek beépítésre.

A minimális energiaigényt a megfelelő szigetelésen kívül a megújuló energiát használó gépészet is biztosítja. A fűtést levegő-víz hőszivattyús rendszer fogja végezni.


Burkolatok , szaniterek, belső ajtók, csaptelepek választhatóak a következő értékhatárig:

-Hidegburkolat: 3000 Ft.-/m2
-Melegburkolat: 3000 Ft.-/m2
-Beltéri ajtók: 30.000.Ft.-/db
-Fürdőkád: 40.000.- Ft.-
-Csaptelepek: 15000.- Ft.-/db

Magasabb árú választás is lehetséges, a különbség finanszírozásával.

A kivitelező korábban Sülysápon épített, már birtokbaadott ingatlanjait komoly érdeklődés esetén szívesen megmutatjuk referenciaként.

Központi elhelyezkedésének köszönhetően a közelben megtalálhatóak:
-óvoda 300m
-Móra Ferenc általános iskola 600m
-Tesco 700m
-Vasútállomás 450m
-Polgármesteri hivatal 650m
-Sülysáp 1-es Posta 650m
-Sülysáp Városi Piac 900m

Csok plusz és Otthon Start igényelhető!

Tervezett átadás 2026 harmadik negyedéve


INGYENES hitel tanácsadás, CSOK Plusz ügyintézés!
BANKFÜGGETLEN hitelcentrumunk az összes elérhető bank és hitelintézet ajánlatát versenyezteti az Ön kedvéért, ráadásul DÍJMENTESEN.

- Egyedi, bankfiókban nem elérhető kamat- és díjkedvezmények
- Hitelképesség vizsgálat
- Idő, energia és pénz megtakarítás
- Teljes hivatali ügyintézés

Amennyiben hirdetésem felkeltette az érdeklődését vagy egyéb információra van szüksége hívjon bizalommal!

Családi ház részletei

Ár: 70 000 000 Ft
Méret: 93 négyzetméter
Azonosító: 11582604
Irodai azonosító: 390208
Cím: Határ út
Telek: 432 négyzetméter
Ingatlan állapota: Kitűnő
Jelleg: családi ház
Építőanyag: Tégla
Fűtés jellege: Geotermikus
Fűtés módja: Hőszivattyú
Komfort fokozat: Összkomfort
Kor: Új építésű
Szintek száma: Földszintes
Egész szobák: 4

Egyéb jellemzők

  • Csatorna
  • Garázs
  • Pince
  • Terasz

Térkép

Hasonló családi ház hirdetések

Eladó családi ház

Sülysáp

Sülysápon a Határ úton 960 m2-es telken, 93,76 m2-es három szoba + amerikai ...

Eladó családi ház

Sülysáp

Sülysápon a Dózsa György út 130 szám alatt, 92,85 m2-es három szoba ...

Eladó családi ház

Sülysáp

Sülysápon a Dózsa Gyögy út és az Ady endre utca sarkán , 600 m2-es ...

Eladó családi ház

Sülysáp

Sülysápon, a Kókai utcában, csendes és rendezett környezetben kínálunk ...

Hasonló családi ház hirdetések

Eladó családi ház

Sülysáp

Sülysápon a Határ úton 960 m2-es telken, 93,76 m2-es három szoba + amerikai ...

Eladó családi ház

Sülysáp

Sülysápon a Dózsa György út 130 szám alatt, 92,85 m2-es három szoba ...

Eladó családi ház

Sülysáp

Sülysápon a Dózsa Gyögy út és az Ady endre utca sarkán , 600 m2-es ...

Eladó családi ház

Sülysáp

Sülysápon, a Kókai utcában, csendes és rendezett környezetben kínálunk ...