Eladó ipari ingatlan Sárospatak 105 000 000 Ft

Leírás


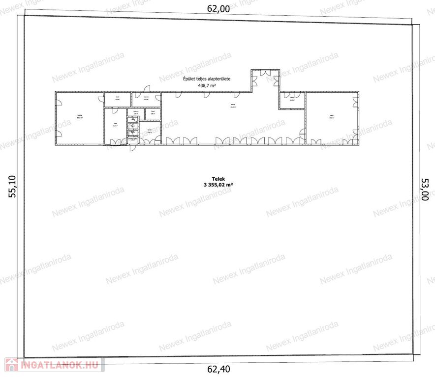
Eladó egy 2015-ben épült, korszerű, tégla falazatú ipari-kereskedelmi telephely Sárospatak frekventált, mégis csendes övezetében. A 438 m²-es, fűthető, jól szigetelt csarnok optimális méretével és megbízható szerkezeti kialakításával ideális választás termelő, szerviz, logisztikai vagy szolgáltató tevékenységhez. A több mint 3 300 m²-es, sík, nagyrészt murvázott telek teherforgalomra alkalmas, kamionnal is jól megközelíthető, és további bővítési lehetőségeket biztosít: új csarnok, fedett tároló vagy bővített üzemi terület is kialakítható.

 

Az épület műszakilag kiváló állapotú: teherhordó tégla falazat, hőszigetelt nyeregtető, vegyes tüzelésű kazán, bővíthető ipari áram (3x16A), vezetékes víz és csatorna kiépítve. A részben akadálymentesített kialakítás, a tágas bejárat és az egyenletes járófelület kényelmes használatot biztosít. Az udvaron 8–10 gépkocsi parkolása megoldott.

 

Felhasználási lehetőségei sokoldalúak: autószerviz, gumis műhely, asztalos- vagy fémipari üzem, kereskedelmi raktár, kisüzemi gyártás vagy építőipari vállalkozás központja egyaránt ideális. A telephely azonnal használható, nem igényel felújítást, ár/érték aránya pedig kimagasló a térségben.

Irányár: nettó 115 000 000 Ft.



Kérésre alaprajz, műszaki dokumentáció és helyszíni bejárás biztosított; komoly érdeklődő esetén projektterv is egyeztethető.

Ipari ingatlan részletei

Ár: 105 000 000 Ft
Méret: 150 négyzetméter
Azonosító: 11581567
Irodai azonosító: 698900628
Ingatlan állapota: Átlagos
Jelleg: egyéb

Egyéb jellemzők

  • Csatorna
  • Gáz
  • Villany
  • Víz