Eladó lakás Budapest XVI. ker 85 000 000 Ft

Leírás

XVI. KERÜLETBEN: MÁTYÁSFÖLDÖN, KÖZEPES ÁLLAPOTÚ, 68 M2, 3 SZOBÁS, I. EMELETI, TÁRSASHÁZI LAKÁS!



AZ ÉPÜLET JELLEMZŐI:

Az 1970-ben épült, 4 emeletes, 10 lakásos, társasház.

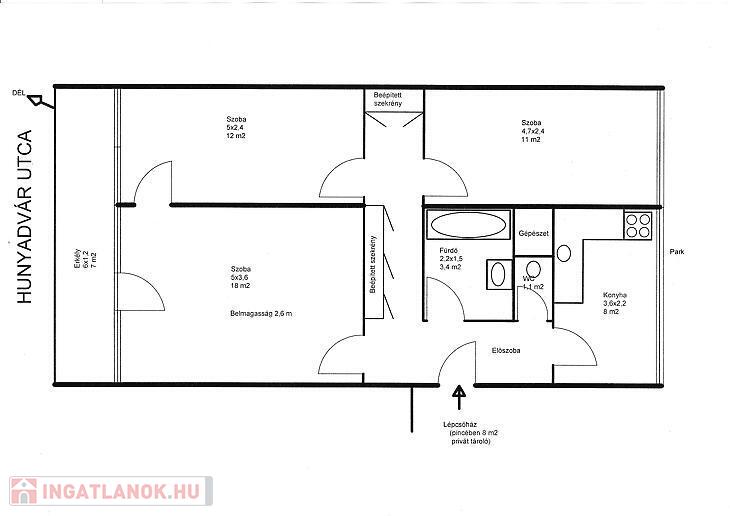
A LAKÁS JELLEMZŐI:

Eladásra kínálunk egy kivételes adottságokkal rendelkező, tágas és világos lakást, amely három külön nyíló szobájával, kényelmes közlekedőjével és praktikus elrendezésével garantálja a mindennapi komfortot.

A lakás külön helyiségben található fürdőszobával és WC-vel rendelkezik, a közlekedőben elhelyezett beépített szekrénysor pedig kiváló tárolási lehetőséget biztosít. A 7 m²-es erkély kellemes kültéri pihenőteret teremt, míg a 8 m²-es pincehelyiség további praktikumot ad az ingatlannak.

Az otthon állapota közepes, így új tulajdonosa saját ízlése szerint alakíthatja remek alapot nyújt egy igényes felújításhoz. A nyílászárók eredetiek, redőnnyel felszerelve, a kellemes hőérzetről pedig klímaberendezés gondoskodik. A fűtés házközponti, ami gazdaságos és egyenletes meleget biztosít a hidegebb hónapokban.

A parkolás a ház előtt kényelmesen megoldható.



FINANSZÍROZÁS:

A lakás banki finanszírozással is megvásárolható, melyben irodánk ingyenes tanácsadással áll rendelkezésükre!



A hirdetésben szereplő adatok tájékoztató jellegűek.

Várjuk hívását munkanapokon 09:00-18:00 óra között.

Amennyiben eladná saját ingatlanát, több mint 10 éve működő, kifejezetten a kerületre szakosodott irodánktól, INGYENES ÉRTÉKBECSLÉST kérhet.

VEVŐINK RÉSZÉRE A KÖZVETÍTÉS DÍJTALAN!!

A hirdetésben szereplő adatok tájékoztató jellegűek.



Lakás részletei

Ár: 85 000 000 Ft
Méret: 68 négyzetméter
Azonosító: 11584711
Irodai azonosító: 24117
Építőanyag: Kérdezzen rá a hirdetőtől »
Fűtés jellege: Házközponti
Ingatlan állapota: Átlagos
Egész szobák: 3

Hasonló lakás hirdetések

Eladó lakás

Budapest XVI. ker

XVI. KERÜLETBEN: A CENTENÁRIUM LAKÓTELEPEN, CSENDES PARKOS KÖRNYEZETBEN, ...

Eladó lakás

Budapest XVI. ker, Cinkota

Eladó egy 120 m2-es, kertkapcsolatos lakás (+ 229 m2 beépíthető tetőtér) ...

Eladó lakás

Budapest XVI. ker

Eladó 75m2-s felújított, klímás 4. emeleti panorámás lakás a Centenáriumi ...

Eladó lakás

Budapest XVI. ker

XVI. KERÜLETBEN: RÁKOSSZENTMIHÁLYON, ELADÓ EGY 60 NM-ES, 3 SZOBÁS LAKÁS. Családi ...

Hasonló lakás hirdetések

Eladó lakás

Budapest XVI. ker

XVI. KERÜLETBEN: A CENTENÁRIUM LAKÓTELEPEN, CSENDES PARKOS KÖRNYEZETBEN, ...

Eladó lakás

Budapest XVI. ker, Cinkota

Eladó egy 120 m2-es, kertkapcsolatos lakás (+ 229 m2 beépíthető tetőtér) ...

Eladó lakás

Budapest XVI. ker

Eladó 75m2-s felújított, klímás 4. emeleti panorámás lakás a Centenáriumi ...

Eladó lakás

Budapest XVI. ker

XVI. KERÜLETBEN: RÁKOSSZENTMIHÁLYON, ELADÓ EGY 60 NM-ES, 3 SZOBÁS LAKÁS. Családi ...