Eladó lakás Győr 53 750 000 Ft

Leírás

Győr családi házas övezetében Győrszentiván frekventált részén, 1241 m2-es két utcafrontos telken, a mai kor műszaki-energetikai követelményeinek és trendeknek megfelelően felépülő 5 lakásos sorház, nettó 65 m2-es belső két szintes lakása eladó.
Az ár fűtéskész állapotra vonatkozik, és tartalmazza a telekhányadot, valamint az 5% ÁFÁ-t.
Várható átadás 2026 II. negyedév, a kulcsrakész befejezés kb. 2026 IV. negyedév.
Kulcsrakész vételár: 58,5 MFt
Elosztása a következő:

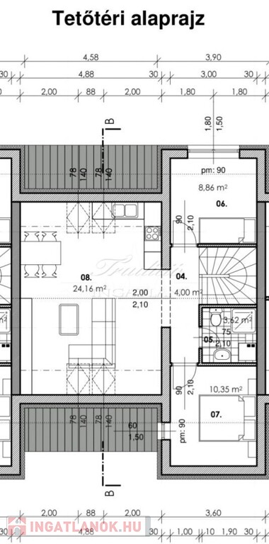
Földszint: előtér 4,9 m2, közlekedő 7,8 m2, wc 1,9 m2
Emelet: amerikai konyhás nappali 24,16 m2, hálószoba 10,35 m2, hálószoba 8,86 m2, zuhanyzó 3,62 m2, közlekedő 4 m2

Az épület modern, mégis a környezethez illeszkedő formavilággal készül, jól átgondolt és praktikus alaprajzokkal. A homlokzatok tervezésénél kiemelt figyelmet kapott a természetes fény maximalizálása.

Műszaki tartalom:

főfalak: Porotherm N+F 30 tégla

válaszfalak: Porotherm 10 N+F tégla

6 légkamrás, szürke Kömmerling műanyag nyílászárók, 3 rétegű üvegezéssel

redőny előkészítés

homlokzat: 15 cm BAUMIT grafitos polisztirol hőszigetelés

tető: antracit színű beton cserép

szintek között monolit vasbeton födém

fűtés és meleg víz: 24 kW-os kondenzációs kombi gázkazán, radiátorral vagy padlófűtéssel

vasbeton szerkezetű lépcső

Az udvaron térkövezett gépkocsibeállókat alakítanak ki, melyek 1 M Ft/db áron megvásárolhatók.

Győrszentiván az AUDI gyár közvetlen közelében található, az 1-es főút és az M1 autópálya pár perces távolságban van. A 1241 m²-es, két utcáról megközelíthető telken külön bejáratos 5 lakás és egy üzlethelyiség épül, valamint a másik utcafrontról egy önálló családi ház is kialakításra kerül.
A TRADÍCIÓ INGATLANIRODA AZ ALÁBBI SZOLGÁLTATÁSOKKAL ÁLL AZ ÜGYFELEK RENDELKEZÉSÉRE:
- LAKOSSÁGI ÉS IPARI INGATLANOK ÉRTÉKESÍTÉSE ÉS BÉRBEADÁSA
- DÍJMENTES PÉNZÜGYI TANÁCSADÁS, HITELÜGYINTÉZÉS, LAKÁSHITELEK, ÁLLAMI TÁMOGATÁSOK / CSOK, ÁFA / , BABAVÁRÓ HITEL, SZEMÉLYI KÖLCSÖN, LAKÁSTAKARÉK, BIZTOSÍTÁS
- JOGI HÁTTÉR, ADÁSVÉTELI SZERZŐDÉSEK KÉSZÍTÉSE KEDVEZŐ FELTÉTELEKKEL
- ENERGETIKAI TANÚSÍTVÁNY KÉSZÍTÉSE
- INGATLAN ÉRTÉKBECSLÉS
AMENNYIBEN GYŐRI, ILL. GYŐR KÖRNYÉKI, ELADÓ VAGY KIADÓ INGATLANNAL RENDELKEZIK, KÉREM HÍVJON!

Lakás részletei

Ár: 53 750 000 Ft
Méret: 65 négyzetméter
Azonosító: 11582334
Irodai azonosító: 123483
Cím: Győr
Emelet: 1. emelet
Építőanyag: Kérdezzen rá a hirdetőtől »
Fűtés jellege: Cirkó
Ingatlan állapota: Átlagos
Építési év: Új építésű
Egész szobák: 3

Egyéb jellemzők

  • Erkély

Hasonló lakás hirdetések

Eladó lakás

Győr

Nádorváros egyik legkedveltebb részén , 2024-as átadással eladó egy ...

Eladó lakás

Győr

Győr közkedvelt részén, Adyvárosban eladó egy 53 nm-es, ...

Eladó lakás

Győr, Győrszabadhegy

Első lakás? Befektetés? Tökéletes választás! Szabadhegy! L4 Modern, ...

Eladó lakás

Győr

Győr városának egyik legdinamikusabban fejlődő területén, Szitásdombon ...

Hasonló lakás hirdetések

Eladó lakás

Győr

Nádorváros egyik legkedveltebb részén , 2024-as átadással eladó egy ...

Eladó lakás

Győr

Győr közkedvelt részén, Adyvárosban eladó egy 53 nm-es, ...

Eladó lakás

Győr, Győrszabadhegy

Első lakás? Befektetés? Tökéletes választás! Szabadhegy! L4 Modern, ...

Eladó lakás

Győr

Győr városának egyik legdinamikusabban fejlődő területén, Szitásdombon ...