Eladó lakás Zamárdi 98 000 000 Ft

Leírás

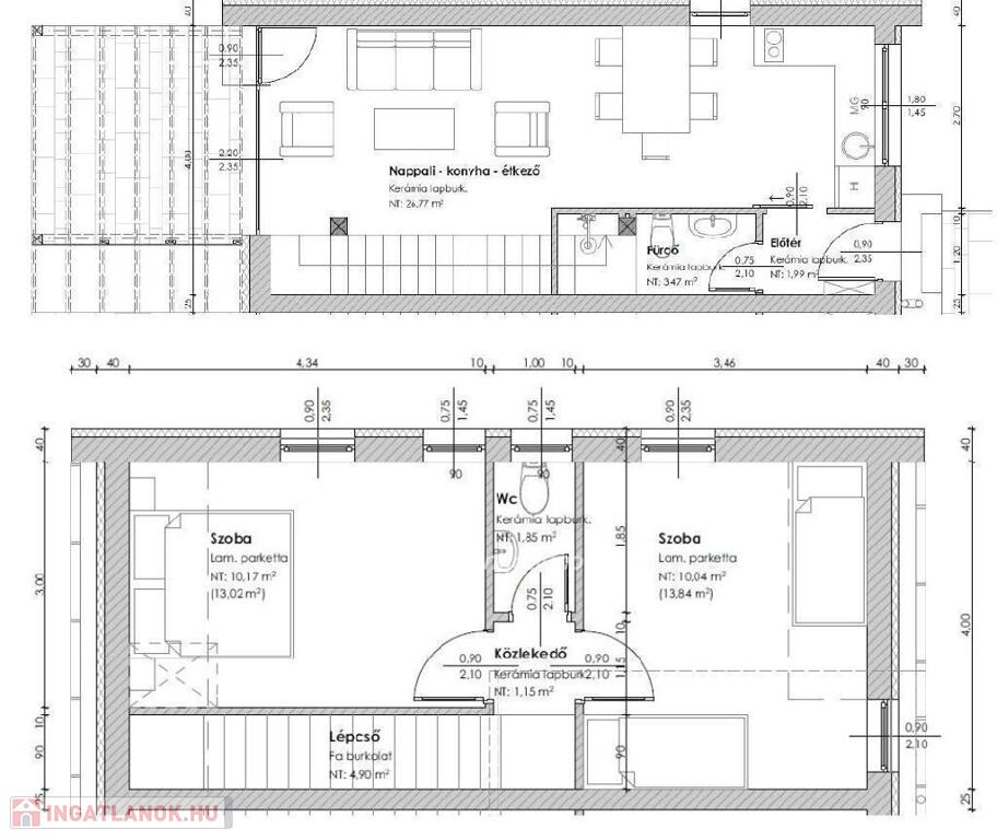
Balaton déli part, Zamárdi, üdülőövezeti 67 m2 lakás eladó saját kertrésszel, parkolóval! A korszerű energetikai követelmények szerint, 2020-ban épült 9 lakásos társasház teljesen újszerű, gondosan karbantartott. Fűtését hőszivattyú biztosítja H tarifás mérőórával, padlófűtés kiegészítéssel, a falakon 15 cm szigetelés, a nyílászárók 3 rétegűek, távirányítható redőnnyel szereltek, a meleg vizet elektromos bojler adja. A lakásokhoz tartozó szeparált kerteket és a közös használatú kertrészeket kertész tartja rendben. A lakáshoz 1 db férőhely biztosított zárt kapun belül, a társasház parkolójában. További parkolási lehetőség a ház vendégparkolójában, utcán, közterületen ingyenesen. Az ingatlan lokációja miatt ideális nyaralóként, vagy kereskedelmi szálláshelyként történő hasznosításra is. A Balaton-parttól 600 méterre, a központtól, vasútállomástól 400 méterre található. Rugalmasan megtekinthető, előzetes időpont egyeztetést követően. Részletekért kérem, hívjon!


Otthon Start Hitelprogram

Referencia szám: M293907

Lakás részletei

Ár: 98 000 000 Ft
Méret: 67 négyzetméter
Azonosító: 11581499
Irodai azonosító: M293907-4816907
Emelet: Földszint
Építőanyag: Tégla
Ingatlan állapota: Átlagos
Építési év: 1-5 éves
Kilátás: kertre néző
Egész szobák: 3

Egyéb jellemzők

  • Kocsibeálló

Térkép

Hasonló lakás hirdetések

Eladó lakás

Zamárdi

Zamárdiban, csupán pár percre a szabad strandtól(pontosan 350 méterre) ...

Hasonló lakás hirdetések

Eladó lakás

Zamárdi

Zamárdiban, csupán pár percre a szabad strandtól(pontosan 350 méterre) ...