Az értékesítő:
Cseke Tamás
+36 70 364 9243

Eladó családi ház Békéscsaba, 55 900 000 Ft, 123 négyzetméter

55 900 000 Ft
családi ház, 123 négyzetméter
Építőanyag:
Tégla
Egész szobák:
4
Ingatlan állapota:
Kitűnő
Azonosító:
11393744
Értékesítés típusa:
eladó
Ingatlan típusa:
családi ház
Jelleg:
Családi ház
Település:
Békéscsaba
Alapterület:
123
Telekterület:
427
Ár:
55 900 000 Ft
Fűtés jellege:
Cirkó
Terasz:
Nincs
Erkély:
Nincs
Beépíthető tetőtér:
Nincs
Melléképület:
Van
Pince:
Van
Klíma:
Van
Telekterület típusa:
négyzetméter
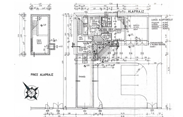
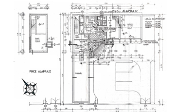
Új építésű családi ház Békéscsabán! A ház szerkezetkész állapotban állt évekig, befejezése idén folytatódott, jelenleg is építés alatt áll, napról napra kedvezőbb készenléti állapotba kerül, csak a burkolatok hiányoznak és a belső nyílászárók, így az új tulajdonos kiválaszthatja a neki tetsző színeket! Pontosításért érdemes megtekintenie személyesen, és egyeztetni! Az udvar 427 m2-es, az utca felől jó állapotú kerítéssel és kis- és nagykapuval kerített! Az udvaron Frühwald burkolatú járdák és bejáró került kialakításra. Az épület alatt egy 30 m2-es, száraz, kifogástalan állapotú pince található, melynek egy részében hőtőkamra került kialakításra. A földszint lakótere 46,5 m2, a konyha-étkező helyiséggel egy légterű nappali, illetve WC és zuhanyzó található ezen a szinten, a nappaliból egy vasbeton szerkezetű lépcsőn keresztül juthatunk a tetőtérbe. Ezen kívül a földszinten kialakításra került, egy dupla garázs, amely elektromos, magasított garázskapuval ellátott, így akár magasabb autó, kisteherautó tárolására is alkalmas. Szintén a földszinten található egy 45 m2-es üvegház, ami akár télikertként, vagy pihenő, szabadidős helyiségként, akár wellness helyiségnek is kialakítható, mivel víz és szennyvíz ebben a helyiségben is kiépítésre került. Az épület tetőtere 46 m2 hasznos területű, három hálószoba, egy fürdőszoba, szárítóhelyiség/mosókonyha került kialakításra. Az épület tégla falazattal épült, homlokzata és tetőtere hőszigetelt, a külső nyílászárók újak, 3 rétegű, műanyag szerkezetek. A fűtési rendszer teljesen kiépítésre került, a kazán és a radiátorok (ezek megvannak, az ár tartalmazza) felhelyezésével működőképes! Főbb jellemzők: - 427 m2 telek - 123 m2 lakótér - 28 m2 garázs - 45 m2 üvegház/tároló - Frühwald járdák és kocsibejáró, jó állapotú, falazott kerítés - Homlokzat hőszigetelése - Új fűtési rendszer - Minden helyiségben új aljzatbeton - Új víz, szennyvízhálózat - Falak glettelése, festése - Új elektromos hálózat A ház kiváló műszaki állapotú, tágas, világos, emellett családias környezetben helyezkedik el! Ügyfeleink számára irodánk teljes jogi hátteret, adás-vétellel kapcsolatos térítésmentes jogi tanácsadást biztosít! Bank semleges, díjmentes hitel tanácsadással is hozzájárulunk, hogy megtalálja az ön számára legkedvezőbb megoldást! (További kínálatunkat keresse a VING hivatalos weboldalán.)
https://ingatlanok.hu/elado/haz/bekescsaba/56-millio-ft;123-negyzetmeter;4-szoba;cirko-futes/11393744