Az értékesítő:
Sárainé Kovács Ágnes
+36 30 742 5020

Eladó családi ház Hódmezővásárhely, 172 000 000 Ft, 593 négyzetméter

172 000 000 Ft
családi ház, 593 négyzetméter
Építőanyag:
Tégla
Egész szobák:
10
Ingatlan állapota:
Felújítandó
Azonosító:
11393769
Értékesítés típusa:
eladó
Ingatlan típusa:
családi ház
Jelleg:
Családi ház
Település:
Hódmezővásárhely
Alapterület:
593
Telekterület:
1576
Ár:
172 000 000 Ft
Fűtés jellege:
Cserépkályha
Terasz:
Van
Erkély:
Nincs
Beépíthető tetőtér:
Van
Melléképület:
Van
Pince:
Nincs
Klíma:
Nincs
Telekterület típusa:
négyzetméter
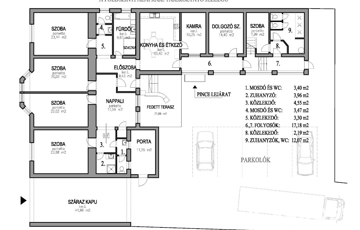
Ritka lehetőség, hogy a város belterületén eladó egy 1578 m2 -es telek ipari területtel és polgári házzal. Az 1900-as évek elején épült tégla épület lakórésze 316,70 m2 területű. A főépület alatt található ~ 50 m2 alapterületű, két helyiségből álló pince add helyet a központi fűtést ellátó fatüzelésű kazánnak is. A főépület portája mögött található a fedett grillező terasz, innen léphetünk be a több mint 3 m belmagasságú polgári házba. A földszinten 4 db 20 m2 -nél nagyobb szoba, nappali, étkező és konyha, dolgozó szoba, zuhanyzó, fürdő , két külön wc, valamint a szauna található. A hátsó folyosóról közelíthető meg a félemeleti szoba, illetve a tetőtérben lévő 3 szoba is. A telek hátsó részében helyezkednek el az 1980-as években épült tégla szerkezetű, jelenleg raktárépületként funkcionáló helyiségek, egy 40 m2 alapterületű garzon lakás, porta épület, és 116 m2 fedett, burkolt tároló. Néhány adat az ingatlanról ami segíthet a döntésben: - 1578 m2 telek, Lk. 0.2.5.9. besorolású ( Kisvárosias lakóterület, 50% beépíthető ) - főépület földszinti lakótér : 242,00 m2 - emeleti beépítés: 54,70 m2 , - félszinten található szoba: 20,00 m2 - fedett terasz: 21,86 m2 - központi fűtés, radiátorokkal az egész lakóépület területén, fatüzelésű kazán. - utcafronton új fa hőszigetelő nyílászárók - gazdasági épületek: 236 m2 - garzon lakás: 40 m2 - fedett tárolók: 116 m2 Az ingatlannal kapcsolatos kérdéseivel várom hívását, a hét bármely napján. Ügyfeleink számára irodánk teljes jogi hátteret, adás-vétellel kapcsolatos térítésmentes jogi tanácsadást biztosít. Bank semleges hitelügyintézéssel, díjmentes hitelszűréssel és tanácsadással is hozzájárulunk, hogy megtalálja az ön számára legkedvezőbb megoldást. (További képekért és információkért kérem hívjon!)
https://ingatlanok.hu/elado/haz/hodmezovasarhely/172-millio-ft;593-negyzetmeter;11-szoba;cserpkelyha-futes/11393769