Az értékesítő:
Kiss Luca
+36 20 287 2443

Eladó családi ház Hajdúsámson, 82 000 000 Ft, 105 négyzetméter

82 000 000 Ft
családi ház, 105 négyzetméter
Építőanyag:
Tégla
Egész szobák:
4
Komfort fokozat:
Dupla komfort
Ingatlan állapota:
Átlagos
Azonosító:
11402651
Értékesítés típusa:
eladó
Ingatlan típusa:
családi ház
Jelleg:
Ikerház
Település:
Hajdúsámson
Alapterület:
105
Telekterület:
330
Ár:
82 000 000 Ft
Kor:
Új építésű
Telekterület típusa:
négyzetméter
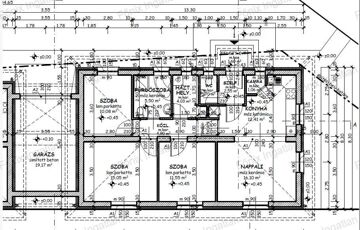
Hajdúsámson belvárosi szakaszán, aszfaltozott, összközműves utcában, új építésű, egyszintes, 3 hálószobás, modern elrendezésű ikerház, saját telekkel, garázzsal eladó. Az ingatlan külön bejárattal, elkerített telekrésszel, kerítéssel rendelkezik. Mivel a lakóegységek a garázsoknál találkoznak, így nincs a szomszédok között közvetlen falkapcsolat sem.    - teljes telek területe 1027 m2,  - Porotherm 30 vázkerámia, - 15 cm homlokzati szigetelés, - 12 cm padlószigetelés, - 30 cm födém ásványgyapot szigetelés, - 3 rtg. 6-7 kamrás ablakok, redőnytokok, - kondenzációs gázkazán, padló és radiátorfűtés, - 3.5 kw inverteres klíma –„H” tarifa, - garázs 20 m2, elektromos kapuval,  - a telekrész mintegy 330 m2.    Az ingatlan rövid határidővel birtokba vehető, jelenleg a konyhabútorra, a kert parkosítására és a beltérben még néhány apró esztétikai beavatkozásra van szükség. . 
https://ingatlanok.hu/elado/haz/hajdusamson/82-millio-ft;105-negyzetmeter;4-szoba;nincs-megadva-futes/11402651