Az értékesítő:
Szabó Ernő
+36 30 416 2393

Eladó lakás Kistelek, 31 395 000 Ft, 46 négyzetméter

31 395 000 Ft
lakás, 46 négyzetméter
Építőanyag:
Tégla
Egész szobák:
1
Komfort fokozat:
Összkomfort
Ingatlan állapota:
Szerkezetkész
Azonosító:
11416579
Értékesítés típusa:
eladó
Ingatlan típusa:
lakás
Település:
Kistelek
Alapterület:
46
Ár:
31 395 000 Ft
Fűtés jellege:
Egyéb
Erkély:
Van
Erkély mérete:
3.00 m2
Kert mérete:
3.00 m2
Kertkapcsolat:
Nincs
Pince:
Nincs
Lift:
Nincs
Klíma:
Nincs
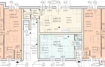
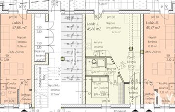
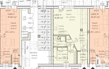
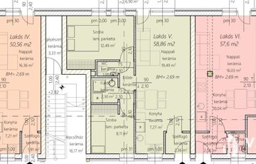
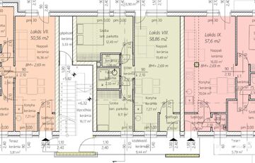
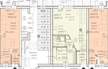
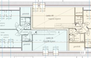
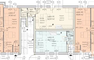
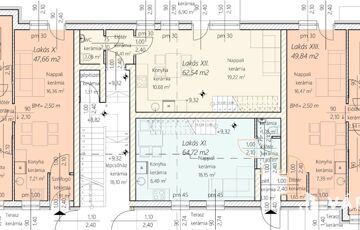
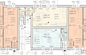
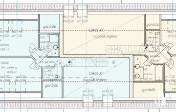
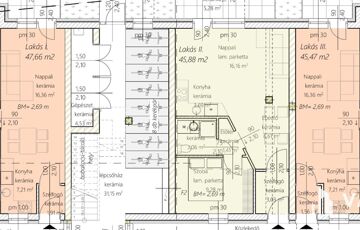
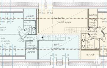
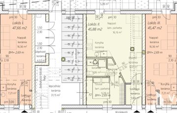
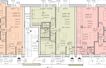
Kistelek központjában épülő hőszigetelt társasházban kínálok kedvező áron lakásokat, szerkezetkész állapotban. A szerkezetkésznél a szaniterek , csaptelepek, csempék, konyhabútor nincs felrakva. A lakások fűtése kedvező módon termálvízzel történik. Egyedi mérőórák felszerelésével. A társasház jellemzői: földszinti lakások és üzlethelyiségek, következik 3 szint plusz tetőtér. Összesen 15 lakás épül, ebből már 3 db lakás elkelt az első emeleten a 4-es és 5-ös számú. A 3. emeleten a 13-as is elkelt. A lakások méretei, a legkisebb 45,47 m2, a legnagyobb 64,72 m2. 2026 januártól 5 % áremelés. Szerkezetkész ár: 682.500 Ft/m2 + 5 % ÁFA, kulcsrakész, egyedi megbeszélés, plusz 5%-os ÁFA. Az alaprajzról mindenki most még kiválaszthatja a számára legmegfelelőbbet. Csak a lakáshoz vásárólható a garázs 8.000.000 Ft-ért vagy parkolóhely 1.270 000 Ft-ért vásárolható. Az kulcsrakész átadás tervezett időpontja 2026 október. Fizetése ütemenként történik ( 60%-20%-20%) A pontosabb részletekért a lenti elérhetőségemen bizalommal kereshet. Tervezett kulcsrakész átadás: 2026 október Az ingatlan értékét növeli a fürdő közelsége is és, hogy onnét kapja a termál fűtést. A 2004-ben átadott, családias hangulatú fürdőben négy medence, szauna és különféle kezelések várják a vendégeket. A zárt légterű hévizes termálfürdő, mintegy 2000 méter mélyről, 84°C-os hőmérséklettel tör a felszínre a nátrium-hidrogénkarbonátban és metakovasavban gazdag, lágy, fluoridos jellegű gyógyvíz. Közlekedés kiváló. Szeged távolsága autóval 20-25 perc. A lakások központi elhelyezkedésűek, közelben bank, posta, ABC, spékség, cukrászda, bölcsőde, óvoda, iskola található. Az M5-ös autópálya 2 -km-re húzódik a város mellett. Babaváró igényelhető, CSOK plusz és alacsony kamatozású hitel felvehető a jogszabályi feltételek teljesítése esetén. Az ügyvédi munka és hitelügyintézés szintén szolgáltatásunk része, így Ön sokkal eredményesebben fog célba érni. Ha bármi kérdése felmerül az ingatlannal kapcsolatban, vagy meg szeretné tekinteni, kérem, hívjon az elérhetőségemen bármikor, engem nem fog zavarni. Szabó Ernő 30-416-2393 Prémium Ingatlanértékesítő (További képekért és információkért kérem hívjon!)
https://ingatlanok.hu/elado/lakas/kistelek/31-millio-ft;46-negyzetmeter;3-szoba;tegla-epitesu/11416579