Az értékesítő:
Szalay Zsuzsanna
+36 30 895 1781

Eladó vendéglátó egység Budakeszi, 209 990 000 Ft, 165 négyzetméter

209 990 000 Ft
vendéglátó egység, 165 négyzetméter
Ingatlan állapota:
Azonosító:
11430438
Értékesítés típusa:
eladó
Ingatlan típusa:
vendéglátó egység
Település:
Budakeszi
Alapterület:
165
Ár:
209 990 000 Ft
Elhelyezkedés:
Udvari
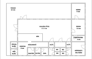
Budakeszin nagy forgalmú helyen, de parkosított környezetben tovább bővíthető étterem nagy kerttel eladó. A jó állapotú étterem 2004-ben épült, könnyűszerkezetes, fedett bruttó alapterülete 165 nm, + részben fedett terasz 60 nm. HACCP tanúsítvánnyal rendelkező vendéglátóhely, jelen kialakításában 45-50 fő befogadására alkalmas. Az épületben van egy 30 nm-es iroda fürdőszobával, mely önálló lakrésznek is használható. A telek 1951 nm-es, automata öntözőrendszerrel ellátott. Parkolási lehetőség: 8 gépkocsi részére zárt parkoló. A terület maximális beépíthetősége 25% , azaz 487 nm. A területen a vendéglátó építményen kívül létesíthető sportolási célú, valamint az azzal szorosan összefüggő kereskedelmi, szállás-szolgáltató létesítmények.
https://ingatlanok.hu/elado/vendeglato_egyseg/budakeszi/210-millio-ft;165-negyzetmeter;nincs-megadva-jellegu;nincs-megadva-tulajdonviszony/11430438