Az értékesítő:
Szalay Zsuzsanna
+36 30 895 1781

Eladó családi ház Telki, 225 000 000 Ft, 180 négyzetméter

225 000 000 Ft
családi ház, 180 négyzetméter
Egész szobák:
4
Komfort fokozat:
Dupla komfort
Ingatlan állapota:
Átlagos
Azonosító:
11430979
Értékesítés típusa:
eladó
Ingatlan típusa:
családi ház
Jelleg:
Családi ház
Település:
Telki
Alapterület:
180
Telekterület:
1010
Ár:
225 000 000 Ft
Szintek száma:
Földszintes
Fűtés jellege:
Egyedi
Kor:
Új építésű
Terasz:
Van
Pince:
Nincs
Telekterület típusa:
négyzetméter
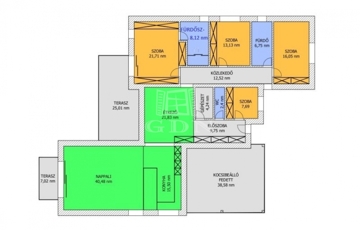
Telkiben, csendes, erdő közeli 1010 nm-es D-i tájolású telken, nettó 180 nm (bruttó 251 nm) alapterületű, 4+1 szobás, egy szintes, enegiatudatos családi ház 2022. év végi átadással eladó. Energiatudatos, luxus kivitelű családi ház. Elrendezése: 56 nm amerikai konyhás nappali + 22 nm-es étkező; 3 hálószoba (22, 13 és 16 nm) 1 dolgozószoba; 2 fürdőszoba + 1 vendég wc; 2 csendes hátsó kertre néző terasz; fedett gépkocsibeálló (5,6 x 6,5 m) Most még számos helyen módosítható a ház belső elosztása/elrendezése, ha időben érdeklődik. Referencia ingatlan megtekinthető. Amennyiben hitelt szeretne igénybe venni a vásárláshoz segítünk Önnek megtalálni a legjobb megoldást! BANKFÜGGETLEN hitelcentrumunk minden elérhető bank és hitelintézet ajánlatát versenyezteti az Ön kedvéért, ráadásul díjmentesen. Önnek nincs más dolga, mint elbeszélgetni munkatársunkkal, aki a hallott információk alapján versenyre hívja a bankokat, hogy Ön hosszú távon is a legjobb konstrukciót kaphassa. A legjobb ajánlatokból végül Ön választhatja ki a nyertest. Munkatársaink sokéves szakmai tapasztalattal várják Önt, előre egyeztetve akár a normál munkaidő után is.
https://ingatlanok.hu/elado/haz/telki/225-millio-ft;180-negyzetmeter;5-szoba;egyedi-futes/11430979