Az értékesítő:
Hámory Áron
+36 30 325 0448

Eladó lakás Kozármisleny, 86 200 000 Ft, 96 négyzetméter

86 200 000 Ft
lakás, 96 négyzetméter
Építőanyag:
Tégla
Egész szobák:
3
Ingatlan állapota:
Épülő
Azonosító:
11499176
Értékesítés típusa:
eladó
Ingatlan típusa:
lakás
Település:
Kozármisleny
Alapterület:
96
Ár:
86 200 000 Ft
Emelet:
1. emelet
Fűtés jellege:
Hőszivattyú
Építési év:
Új építésű
Kocsibeálló:
Van
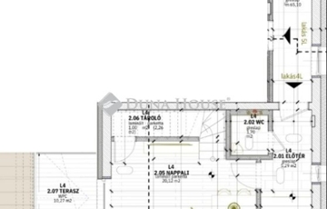
Kozármisleny folyamatosan fejlődő új részén 8 lakásból álló épületben modern, új építésű lakások eladók! Első emeleti belső kétszintes lakás nappali-konyha -étkező, 2 szobás teraszos lakás, saját autó beállóval eladó! 4. Lakás első emeleti 77/96m2 helyiség lista: - Nappali - Konyha - Étkező - Terasz 10,27m2 - Külön WC helyiség -Tároló helyiség Tetőtér: - 2 db szoba - Fürdőszoba A lakópark modern, energiahatékony rendszerekkel épül, tökéletes harmóniát képez a természettel.A lakások kényelmes, modern, funkcionális elrendezéssel, szép panorámával, magas, prémium minőségű anyagok felhasználásával csábítják új lakóikat. Minden lakáshoz díjmentes parkolóhely tartozik, a földszinti lakások saját kerttel, az emeleti lakások terasszal rendelkeznek. Az L alakú épület egy védett közösségi teret ölel körül, ahol egy közös park kerül kialakításra. Ez a védett közösségi tér az igények szerint alakítható. Lehet találkozási pont, akár medence és játszótér is megvalósítható erre a területre.A környezet kisgyermekes családok részére is biztonságos, sebességkorlátozott övezet, a közelben új óvoda, kiváló iskola is várja a gyerekeket. Műszaki tartalom: - 30cm X-Therm vázkerámia falazó-blok, 12cm grafitos hőszigetelés - 30cm födém szigetelés - Hőszigetelt műanyag nyílászárók - Földszinti gépházban kialakított hőszivattyús padlófűtésrendszer és lakásonként fan-coil gyors felfűtésre és hűtésre alkalmas rendszer, HMV körben kialakított használati melegvíz cirkulációs rendszer - Konyhákban, fürdőszobákban, Wc-ben kialakított szellőztetőrendszer közvetlenül a szabadba vezetve Az épületben még több lakás elérhető, érdeklődjön a lakások után!
https://ingatlanok.hu/elado/lakas/kozarmisleny/86-millio-ft;96-negyzetmeter;3-szoba;tegla-epitesu/11499176