Az értékesítő:
Magyar Gabriella
+36 30 677 6676

Eladó családi ház Debrecen, 121 990 000 Ft, 118 négyzetméter

121 990 000 Ft
családi ház, 118 négyzetméter
Egész szobák:
3
Komfort fokozat:
Összkomfort
Ingatlan állapota:
Épülő
Azonosító:
11541615
Értékesítés típusa:
eladó
Ingatlan típusa:
családi ház
Jelleg:
Sorház
Település:
Debrecen
Alapterület:
118
Telekterület:
194
Ár:
121 990 000 Ft
Szintek száma:
Földszintes
Fűtés jellege:
Cirkó
Telekterület típusa:
négyzetméter
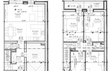
AKCIÓS ÁR! Azonnal költözhetõ, új építésû otthonra vágysz Debrecen egyik legkedveltebb részén? A Hatvan utcai kertben kínálunk eladásra egy minimalista stílusban épült, középsõ sorházi lakást, mely ideális választás családok és mindazok számára, akik modern, mégis otthonos környezetre vágynak. Fõbb jellemzõk: Méret: Az ingatlan összesen 118 m2-es, tágas és világos terekkel. Elrendezés: Nappali + 2+1 szoba biztosítja a kényelmes életteret. Fûtés: Hatékony és gazdaságos cirkó fûtés gondoskodik a melegrõl. Telek: A lakáshoz egy 196 m2-es saját telek tartozik, mely lehetõséget ad kikapcsolódásra és kerti tevékenységekre. Garázs: Egy 14,13 m2- es garázs is rendelkezésre áll, mely kényelmes parkolást biztosít. Kültéri terek: Élvezd a friss levegõt a 10 m2-es teraszon, valamint a felsõ szinten található 7 m2-es loggián. ÁFA: A sorház 5% -os ÁFA-val épült, ami kedvezõbb vételárat jelent. Átadás: Akár azonnali átadással költözhetõ! Ne hagyd ki ezt a kivételes lehetõséget! Ideális választás azoknak, akik Debrecen egyik legkeresettebb, nyugodt környékén keresnek modern, új építésû otthont, kiváló elhelyezkedéssel. Azonosító szám: 17859
https://ingatlanok.hu/elado/haz/debrecen/122-millio-ft;118-negyzetmeter;4-szoba;cirko-futes/11541615