Az értékesítő:
Neizer Éva
+36 70 886 6003

Eladó családi ház Győrújfalu, 110 000 000 Ft, 112 négyzetméter

110 000 000 Ft
családi ház, 112 négyzetméter
Építőanyag:
Tégla
Egész szobák:
5
Komfort fokozat:
Dupla komfort
Ingatlan állapota:
Kitűnő
Azonosító:
11543906
Értékesítés típusa:
eladó
Ingatlan típusa:
családi ház
Jelleg:
Ikerház
Település:
Győrújfalu
Alapterület:
112
Telekterület:
597
Ár:
110 000 000 Ft
Kor:
Új építésű
Telekterület típusa:
négyzetméter
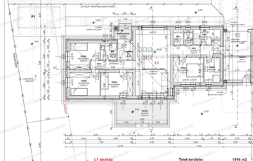
Nappali + 4 szobás ház garázzsal eladó! Győr szomszédságában, Győrújfalun új építésű 112,16 nm-es ikerház 597 nm-es telekrészen eladó. A két ingatlant a garázsok kötik össze. A házban amerikai konyhás nappali, 4 szoba, 2 fürdőszoba, külön WC, háztartási helyiség, kamra, közlekedő, előtér található. A nappaliból és a hálószobából is elérhető 18,54 nm-es terasz. A közlekedőn keresztül elérhető a 18,71 nm-es garázs. A ház belső elrendezése készültségi fokhoz mérten még változtatható.  A ház 30-as falazóelemből, 15 cm-es homlokzati szigeteléssel, 3 rétegű műanyag nyílászárókkal kerül kivitelezésre. Az ingatlan fűtését hőszivattyú biztosítja padlófűtéssel. A klíma előkészítését tartalmazza az ár. Felár ellenében kerti csap, riasztó előkészítés, térkövezés kérhető. Fűtéskész átadás várható ideje 2026. Az ingatlan fűtéskész ára: 110.000.000 Ft. Az ár tartalmazza a telek árát is. Kulcsrakész befejezés kérhető.  Ha Győr szomszédságában, kertes otthonban szeretne élni, ez a ház Önre vár! Bővebb információkért forduljon hozzám bizalommal. Hétköznap és hétvégén is várom hívását! Díjmentes, bankfüggetlen hitelügyintézéssel állunk rendelkezésére.
https://ingatlanok.hu/elado/haz/gyorujfalu/110-millio-ft;112-negyzetmeter;5-szoba;nincs-megadva-futes/11543906