Az értékesítő:
Kovács Dénes
+36 30 202 2228

Eladó családi ház Szentendre, 265 000 000 Ft, 115 négyzetméter

265 000 000 Ft
családi ház, 115 négyzetméter
Építőanyag:
Tégla
Egész szobák:
6
Komfort fokozat:
Összkomfort
Fűtés módja:
Hőszivattyú
Ingatlan állapota:
Kitűnő
Azonosító:
11545545
Értékesítés típusa:
eladó
Ingatlan típusa:
családi ház
Jelleg:
Családi ház
Település:
Szentendre
Alapterület:
115
Telekterület:
350
Ár:
265 000 000 Ft
Szintek száma:
1 szint
Fűtés jellege:
Geotermikus
Kor:
Új építésű
Terasz:
Van
Pince:
Nincs
Telekterület típusa:
négyzetméter
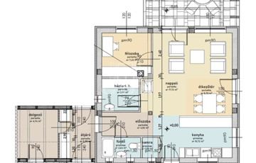
Szentendrén, kiváló lokációban, a Bükkös-patak parton eladó a fotókon látható, 2025-ös építésű, két szintes, nappali plusz 5 szobás családi ház. A nívós építész által tervezett házat alacsony fenntartási költségek, magas minőség és nyugodt, otthonos, igazi Cosy hangulat jellemzi. A fűtésről energiahatékony padlófűtéssel kombinált Remeha hőszivattyú, a hűtésről pedig fan coil rendszer gondoskodik. Az energia hatékonyságot ezek mellett napelem rendszer segíti és a nappaliban modern kivitelezésű hangulatos cserépkályha is található külső levegő áramoltatással. A ház energetikai minősítése: A++ Mindenhol természetes anyagokkal, fa padlóval, tölgyfa konyhabútorral és mészkő burkolattal találkozunk. Környék is nagyon hangulatos, a patak partján mókusok mellett sétálva, bicikli úton biciklizve indulhat a nap, miközben a közeli híres pékségbe térhetünk be friss reggeliért. A továbbiakban pedig a közeli 5*-os uszodában egy wellness élmény koronázhatja meg a napot. Az iskolák, óvodák, gimnáziumok is ideális közelségben vannak. Ha felkeltette érdeklődését és szeretné személyesen is látni, várom hívását a hét bármely napján és szívesen megmutatom Önnek. Amennyiben nem rendelkezik a teljes vételárral, bankfüggetlen hitelcentrumunk minden elérhető bank és hitelintézet ajánlatát versenyezteti az Ön kedvéért, ráadásul díjmentesen. Önnek nincs más dolga, mint elbeszélgetni munkatársunkkal, aki a hallott információk alapján versenyre hívja a bankokat, hogy Ön hosszú távon is a legjobb konstrukciót kaphassa. A legjobb ajánlatokból végül Ön választhatja ki a nyertest. Munkatársaink sokéves szakmai tapasztalattal várják Önt, előre egyeztetve akár a normál munkaidő után is.
https://ingatlanok.hu/elado/haz/szentendre/265-millio-ft;115-negyzetmeter;6-szoba;geotermikus-futes/11545545