Az értékesítő:
Kiss Katalin
+36 20 407 7144

Eladó családi ház Újszász, 79 999 000 Ft, 101 négyzetméter

79 999 000 Ft
családi ház, 101 négyzetméter
Építőanyag:
Tégla
Egész szobák:
4
Komfort fokozat:
Összkomfort
Fűtés módja:
Vegyes
Ingatlan állapota:
Kitűnő
Azonosító:
11549746
Értékesítés típusa:
eladó
Ingatlan típusa:
családi ház
Jelleg:
Ikerház
Település:
Újszász
Alapterület:
101
Telekterület:
200
Ár:
79 999 000 Ft
Fűtés jellege:
Egyéb
Erkély:
Van
Bútorozott:
Nem bútorozott
Telekterület típusa:
négyzetméter
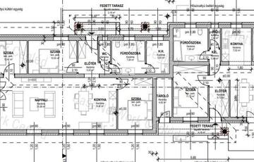
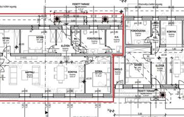
<p><strong>A CasaNetWork Ingatlanhálózat kínálatában eladó épülő ikerházak Újszászon! </strong><br /><strong>Az ingatlan hirdetési azonosítója: 174602084</strong></p><p><strong>A hirdetett lakás: A. lakás: fűtött lakótér: 90,12 nm + 20,95 nm terasz</strong></p><p>A ház modern technológiával, kiváló minőségű anyagokból készül: Phorotherm 30-as falazat kiváló hőszigetelő képességekkel rendelkezik, így télen-nyáron komfortos hőmérsékletet biztosít. A nyílászárók hő- és hangszigetelő műanyag ablakok, amelyek fokozzák az energiahatékonyságot, és kellemes belső klímát teremtenek.</p><p>A fűtésről hőszivattyús fűtés gondoskodik padlófűtéssel. A nyári hőséget lakásonként 1 db inverteres klímaberendezés teszi elviselhetővé.</p><p>Az ikerházakhoz saját kertrész és autóbeálló tartozik.</p><p>Ez az otthon minden műszaki és kényelmi igényt kielégít, amit a modern családi élet megkövetel.</p><h3>Főbb jellemzők:</h3><ul><li><p><strong>Tágas belső tér:</strong> 2 szoba, nappali-konyha, fürdőszoba+Wc, külön WC, háztartási helyiség, előtér és terasz.</p></li><li><p><strong>Minőségi burkolatok: </strong>Laminált parketta melegburkolatként, választható mintázattal. Hidegburkolat: padlólap, legfeljebb 6.000 Ft/m² értékben.</p></li><li><p><strong>Modern nyílászárók:</strong> Műanyag ablakok hő- és hangszigetelő, 3 rétegű üvegezéssel, erkélyajtók – a lakás szellőztetése a tulajdonos feladata.</p></li><li><p><strong>Felszerelt fürdő és konyha:</strong> Kád vagy tusoló, kézmosó a fürdőben, wc</p></li><li><p><strong>Korszerű fűtési rendszer:</strong> hőszivattyús fűtés, padlófűtés és radiátoros fűtés kombinációja.</p></li><li><p><strong>Klíma:</strong> Inverteres klímaberendezés a kellemes nyári hőmérsékletért.</p></li><li><p><strong>Biztonságos bejárat: </strong>többpontos zárral ellátott biztonsági ajtó.</p></li><li><p><strong>Energetikai besorolása:</strong> A++</p></li></ul><h3>Műszaki adatok:</h3><ul><li><p><strong>Válaszfalak:</strong> 10 cm-es tégla, kiváló hang- és hőszigeteléssel.</p></li><li><p><strong>Tető:</strong> Azzurro betoncserép</p></li><li><p><strong>Közművek: </strong>Gáz, víz, villany, csatorna</p></li></ul><p><strong>Várható átadás: 2026 nyár eleje</strong><br />Az ingatlan műszaki tervei alapján hirdetjük meg. Kérjük, vegye figyelembe, hogy a használatbavételi engedély kiadását követően kisebb m²-eltérések előfordulhatnak.</p><p>Amennyiben a CasaNetWork Cegléd által kínált, <strong>174602084 azonosítószámú téglalakás,</strong> vagy bármely más ingatlan felkeltette érdeklődését, keressen bizalommal a megadott telefonszámon!<br /><em>Felhívjuk figyelmét, hogy a hirdetésben szereplő adatok a megbízótól származnak, azok pontosságáért felelősséget nem vállalunk.</em></p><p>Ügyfeleink részére díjmentes, bankfüggetlen hitelügyintézést biztosítunk! 2025 augusztusától elérhetőek a 3%-os lakáshitelek első lakásvásárlóknak!</p><p>CasaNetWork – Ingatlanban otthon vagyunk.</p>
https://ingatlanok.hu/elado/haz/ujszasz/80-millio-ft;101-negyzetmeter;4-szoba;egyeb-futes/11549746