Az értékesítő:
Szaszala Zsolt
+36 70 469 3681

Eladó családi ház Pilisborosjenő, 175 000 000 Ft, 127 négyzetméter

175 000 000 Ft
családi ház, 127 négyzetméter
Egész szobák:
4
Ingatlan állapota:
Kitűnő
Azonosító:
11554644
Értékesítés típusa:
eladó
Ingatlan típusa:
családi ház
Jelleg:
Családi ház
Település:
Pilisborosjenő
Alapterület:
127
Telekterület:
310
Ár:
175 000 000 Ft
Terasz:
Nincs
Erkély:
Van
Melléképület:
Nincs
Pince:
Nincs
Parketta:
Nincs
Kábel TV:
Nincs
Telekterület típusa:
négyzetméter
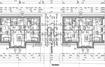
Projekt bemutatása ÚJÉPÍTÉSŰ PRÉMIUM CSALÁDI HÁZAK PILISBOROSJENŐN, A NAGY-KEVÉLY LÁBÁNÁL Fedezze fel új otthonát Pilisborosjenőn, Budapest közvetlen közelében, ahol a természet és a modern építészet találkozik. A festői panoráma a pilisi hegyekre, a környező településekre, sőt, tiszta estéken egészen a Parlamentig nyújt felejthetetlen látványt. Prémium minőség – energiahatékony megoldásokkal Az épületek a legkorszerűbb technológiákkal és anyagokkal készülnek, „A” energetikai besorolással. A hőszivattyús padlófűtés, a split klímák hűtés-fűtés funkciója és a gondosan megválasztott prémium burkolatok garantálják az otthon kényelmét és gazdaságos fenntarthatóságát. Otthon, amely igazodik az Ön életéhez Összesen 6 lakóház, saját kerttel, autóbeállóval vagy garázzsal Kétszintes, 114–196 m²-es terek – átgondolt alaprajzokkal Földszinten: tágas nappali-étkező-konyha, hálószoba, fürdő, háztartási helyiség, kamra Emeleten: három hálószoba, gardrób és fürdőszoba Különlegesség: a C épület egyik lakása háromszintes, kétállásos garázzsal és extra tárolási lehetőséggel Kivételes elhelyezkedés – közel a fővároshoz, mégis a természet ölelésében Pilisborosjenő igazi gyöngyszem: nyugodt, biztonságos település minden korosztály számára, mindössze 13 km-re Budapesttől. Autóval és tömegközlekedéssel is könnyen megközelíthető (busz, vonat). A település saját óvodával, iskolával, orvosi rendelővel és modern közösségi létesítményekkel rendelkezik. A környék kirándulási és sportlehetőségek széles tárházát kínálja: Teve-szikla, Egri vár másolata, Kevélyhegyi tanösvény, levendulamezők és lovardák teszik teljessé az itt töltött mindennapokat. ✨ Ez nem csupán egy ingatlan – ez az Ön jövőbeli otthona, ahol a természet közelsége és a modern élet kényelme tökéletes harmóniában találkozik. Bővebb információért, műszaki tartalommal, megtekintéssel kapcsolatban keressen bizalommal!
https://ingatlanok.hu/elado/haz/pilisborosjeno/175-millio-ft;127-negyzetmeter;4-szoba;nincs-megadva-futes/11554644