Az értékesítő:
Katona Tamás
+36 70 442 2190

Eladó lakás Siófok, 139 000 000 Ft, 110 négyzetméter

139 000 000 Ft
lakás, 110 négyzetméter
Építőanyag:
Tégla
Egész szobák:
4
Komfort fokozat:
Összkomfort
Ingatlan állapota:
Kitűnő
Azonosító:
11565496
Értékesítés típusa:
eladó
Ingatlan típusa:
lakás
Település:
Siófok
Alapterület:
110
Ár:
139 000 000 Ft
Emelet:
1. emelet
Fűtés jellege:
Cirkó
Kilátás:
utcai
Építési év:
21-50 éves
Kocsibeálló:
Van
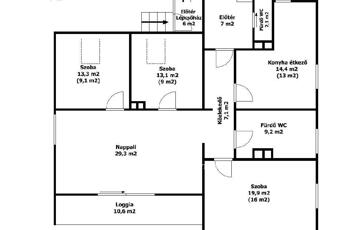
Balaton déli parton, Siófokon, 110 m2-es lakás eladó. Az első emeleti ingatlan a Belvároshoz közeli Aranyparton, frekventált üdülőövezetben helyezkedik el. Nappali plusz 3 szobás lakás több elemében felújításra került. A homlokzati nyílászárók műanyag szerkezetek, szúnyoghálóval kivitelezettek. A fürdőszobában új burkolatok készültek, modern szaniterekkel. A belsőépítészeti megoldások, felületképzések kellemes, meleg, otthonos hangulatot sugároznak. A radiátoros fűtés mellett a lakótérben egy cserépkályha biztosítja a kellemes hőérzetet a téli hónapokban. A nyári időszakban 2 klímaberendezés működik. A lakótérhez tolóajtón át loggia kapcsolódik a déli oldalon. A lakás energetikai korszerűsítése megtörtént, a külső falakra hőszigetelő vakolat került, a fűtés és melegvíz ellátás kombi kondenzációs gázkazánnal megoldott. Az épület mellett fedett 2 egységes kocsibeálló áll rendelkezésre. Az udvarban külön 11 m2-es tároló van. A lakás zárt lépcsőházon át közelíthető meg. Az ingatlan minősített kereskedelmi szálláshely. Balaton-part, Nagystrand és szabadstrand 280 méter, városközpont 800 méter távolságban van. Az energetikai tanúsítvány készítése folyamatban van, amint rendelkezésre áll, úgy azzal a hirdetés frissítésre kerül. Referencia szám: M312447
https://ingatlanok.hu/elado/lakas/siofok/139-millio-ft;110-negyzetmeter;4-szoba;tegla-epitesu/11565496