Az értékesítő:
Takács-Sós Fanni
+36 70 469 3351

Eladó családi ház Debrecen, 85 000 000 Ft, 100 négyzetméter

85 000 000 Ft
családi ház, 100 négyzetméter
Egész szobák:
4
Ingatlan állapota:
Azonosító:
11566941
Értékesítés típusa:
eladó
Ingatlan típusa:
családi ház
Jelleg:
Családi ház
Település:
Debrecen
Alapterület:
100
Telekterület:
555
Ár:
85 000 000 Ft
Fűtés jellege:
Cirkó
Terasz:
Nincs
Erkély:
Nincs
Melléképület:
Nincs
Pince:
Nincs
Parketta:
Nincs
Kábel TV:
Nincs
Telekterület típusa:
négyzetméter
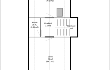
Eladó Debrecen, Mohács utcai otthon: 100 m2-es családi ház 555 m2-es telken. Eladásra kínálunk csendes, családias környezetben található családi házat. A földszinten nappali (20m2), hálószoba (14m2) (cserépkályhával), konyha (5m2) és fürdőszoba(7m2) ,illetve a lépcső alatti részben egy tároló került kialakításra. A beépített tetőtérben további két hálószoba (br. 15m2,20m2) és egy külön WC szolgálja a kényelmet. A konyha és fürdőszoba víz- és elektromos hálózata cserélve lett, a fűtés kettős: egy hangulatos cserépkályha találhat a földszinti hálóban és egy gázkazán (padlófűtéssel), amely modernizálást igényel. Nyílászárói fából készültek. A házhoz öntözőrendszerrel kialakított kert, fedett gépkocsi-beálló, szalonnasütő és fúrt kút tartozik. A telken található egy jó állapotú 13m2-es összközműves melléképület, mely egy szobából és fürdőszobából áll. Az ingatlan per-tehermentes, azonnal birtokba vehető. Kérdés, megtekintés esetén hívjon, szívesen válaszolok!
https://ingatlanok.hu/elado/haz/debrecen/85-millio-ft;100-negyzetmeter;4-szoba;cirko-futes/11566941