Az értékesítő:
Hámori-Ébel Emese
+36 30 997 4501

Eladó lakás Ajka, 81 900 000 Ft, 103 négyzetméter

81 900 000 Ft
lakás, 103 négyzetméter
Építőanyag:
Tégla
Egész szobák:
4
Komfort fokozat:
Összkomfort
Ingatlan állapota:
Kitűnő
Azonosító:
11567049
Értékesítés típusa:
eladó
Ingatlan típusa:
lakás
Település:
Ajka
Alapterület:
103
Ár:
81 900 000 Ft
Emelet:
1. emelet
Építési év:
Új építésű
Erkély:
Van
Kertkapcsolat:
Van
Lift:
Nincs
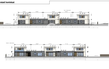
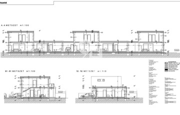
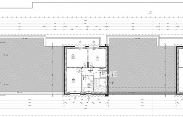
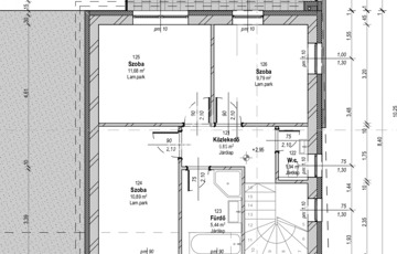
ELADÓ MODERN STÍLUSÚ, ÚJ ÉPÍTÉSŰ EMELETES LAKÁS - AJKA-BAKONYGYEPES 5 LAKÁSOS LAPOSTETŐS SORHÁZÁBAN! FIGYELEM! - JELENLEG SZERKEZETKÉSZ ÁLLAPOTBAN VAN - MÉG 2 DB EMELETES ÉS 2 DB FÖLDSZINTI LAKÁS ELÉRHETŐ! - A LAKÁSOK KULCSRAKÉSZ ÁLLAPOTBAN KERÜLNEK ÁTADÁSRA 2025. III. negyedévben - A SORHÁZ 3 DB EMELETES LAKÁSBÓL, VALAMINT 2 DB FÖLDSZINTES LAKÁSBÓL ÁLL - A LAKÁSOK ENERGIATAKARÉKOS MEGOLDÁSOKKAL KÉSZÜLTEK, AMI ALACSONYABB FENNTARTÁSI KÖLTSÉGET EREDMÉNYEZNEK! - PARKOLNI A SORHÁZ UDVARÁN LEHETSÉGES, INGYENESEN! - A SORHÁZ KERÍTÉSSEL KÖRBEZÁRT - VÉTELÁR: 90.944.000 Ft - A SORHÁZ KÖZELÉBEN TALÁLHATÓ ÉLELMISZERBOLT, AMELY GYALOGOSAN IS KÖNNYEN MEGKÖZELÍTHETŐ - AJKA NÉHÁNY PERC AUTÓVAL ÉS TÖMEGKÖZLEKEDÉSSEL IS EGYARÁNT - A LAKÁSOK MODERN KIALAKÍTÁSÚAK, A MAI KOR IGÉNYEINEK MEGFELELŐEN LETTEK TERVEZVE. ALAPADATOK: A SORHÁZ: - ÉPÍTÉSI ÉVE: 2024 III. NEGYEDÉV - VÁRHATÓ ÁTADÁS: 2025 III. NEGYEDÉV - SZERKEZETE: TÉGLA A LAKÁS: - HASZNOS ALAPTERÜLETE (emelettel együtt): 103,68 m2 Földszint: - szélfogó: 3,57 m2 - lépcsőház: 4,30 m2 - WC (lépcső alatt): 1,48 m2 - nappali: 16,02 m2 - étkező: 7,10 m2 - konyha: 10,75 m2 - szoba: : 11,71 - mosdó: 2,16 m2 - tároló/gépész hs.: 4,36 m2 - terasz: 18,66 m2 Emelet: - közlekedő: 6,85 m2 - WC: 1,94 m2 - fürdő: 5,44 m2 - szoba: 10,89 m2 - szoba: 11,68 m2 - szoba: 9,79 m2 - erkély: 9,43 m2 Telek méret: 272 m2 MŰSZAKI ALAPADATOK: Főfalak: 25 és 30 cm-es Porotherm N+F falazattal készülnek. Lakáselválasztó falak: Leiertherm 25 cm-es dupla falazat, hangszigeteléssel. Áthidalók: monolit és kerámia áthidalók. Födém: monolit vasbeton lemezek, szükséges áttörésekkel és attikaképzésekkel. Lépcső: monolit vasbeton lépcső amely főfalakra és a födémekre támaszkodik fel. Válaszfalak: Leier 10/50 cm-es válaszfaltéglából készülnek. Korlátok: a külső erkélykorlátok saválló acél szerkezetek, illetve biztonsági üvegkorlátok minimum 95 cm magassággal, a kiviteli és a látványterveknek megfelelően. A belső korlátok saválló acél szerkezetek illetve biztonsági üvegkorlátok Nyílászárók: - Homlokzati ablakok, erkélyajtók, bejárati ajtók- 5 kamrás, 70 mm-es szerkezeti vastagságú, Spectus hőhídmentes műanyag nyílászárók, kétrétegű melegperemes hőszigetelő üvegezéssel, (Szerkezet határértke U=1,15 W/m2K), külső oldali antracit színben, belső oldali fehér színben. - bejárati ajtó: Potsdam Glas 3 üveges díszpanel - Garázskapu: hőszigetelt szekcionált garázskapu, szélesbordás, motoros, kívül antracit, belül fehér Párkányok: - Belül, fehér műanyag párkányok, kívül antracit színű alumínium lemezből készülő párkányok Árnyékolás: - Vakolható tokos, műanyag szerkezetű, kombinált redőnyök (redőny + rolós szúnyogháló) kézi működtetés, fehér színben Szigetelés: - Talajpára ellen aljzatbetonra bitumenes szigetelő lemez teljes felülete lángolvasztással elhelyezve. - A vizes helyiségekben használati víz elleni kétkomponensű, kent szigetelés, hajlaterősítő szalaggal. - Földszinten lépésálló hőszigetelés 13 cm vastag. - Az emeleteken lépéshang gátló szigetelés 4 cm vastag. - Homlokzati hőszigetelő rendszer színvakolattal. - Színvakolt részeken általában 15 cm vastagságban, EPS 80 hőszigetelő lapokkal, ragasztóval és kiegészítő elemekkel készítve. - Lábazatra 10 cm –es XPS hőszigetelés kerül felrögzítésre, szilikonos lábazati vakolattal. - Lapostető egyenes rétegrendű PVC szigetelés, pontralejtéssel, attikafalak körbeszigetelésével, belső vízelvezetéssel, terhelés nélkül, mechanikai rögzítéssel. Bádogos szerkezetek: - festett alumínium lemez szegélyek és elemek, szakszerű rögzítéssel. Aljzatbeton: - helyszínen kevert gépi esztrich 6 és 7 cm vtg-ban, Felületképzés: A belső falfelületeken vakolat, funkció szerint csempe ill. diszperziós festés készül. Burkolatok: - A hidegpadlós helyiségekben a tulajdonosok által kiválasztott kerámiaburkolat elhelyezése, a fürdő helyiségben csempe falburkolat ajtófélfa (2,1m) magasságban burkolva,a WC helyiségben csempe falburkolat 1,5 m magasságig burkolva, - lábazatok a választott hidegburkolatból készülnek 7,5 cm szélességben. - Választható hidegburkolatok egységára: bruttó 7.000 Ft/m2, tervek alapján - Melegpadlós helyiségekben a tulajdonos által kiválasztott laminált padlóburkolat létesül. - Választható meleg burkolatok + alátét fólia: bruttó 5.000 Ft/m2, - Választható szegély egységára: bruttó 850 Ft/fm tervek alapján Kémény: nem készül, HŐSZIVATTYÚS fűtés + PADLÓFŰTÉS Egyéb: - Kerítés: hátsó kertek körbekerítve 3D kerítéselemekkel antracit színben - Tetőre való kijutás: Az emeleti tetőre az 1 szintes épületekről, ideiglenes létrával lehetséges a tetőre való kijutás, amelynek használata a társasházi alapító okiratban kerül rögzítésre. - Víz: Az utcai gerincvezetékről a telek ellátott, épületbe beállás készül - Gáz: Az utcai gerincvezetékről a telek ellátott-nem kerül kiépítésre - Áram: a szükséges energia ellátás az ingatlanra földkábeles becsatlakozási pontról, telepített szekrényből biztosított 1x32A (villamos mérőhelyeknek zsalukőfal kiépítése a helyszínrajzokon jelölt előkertekben) - Csatorna: Az utcai gerincvezetékről a telek ellátott, épületbe beállás készül - Fűtés: Lakásonkénti hőszivattyú padlófűtéses kivitelben - Melegvíz ellátás: 100 L tárolós vízmelegítő - Gyengeáramú rendszerek: (telefon, internet, tv) kiépítését utcai rendszerekről a területileg elérhető szolgáltatókkal önállóan szerződéssel kell megoldani. - KLÍMA: Központi klímatizálás nem készül, előkészítés rendelhető árajánlat alapján. Gépészeti szerelések: A kétszintes lakásokban a víz és szennyvíz csövek a belső terekben, falon kívül kerülnek elvezetésre, gipszkarton dobozolással. Az ár nem tartalmazza: kert rendezést, füvesítést, föld feltöltést. A műszaki tartalom tájékoztató jellegű. Ajka-Bakonygyepes egy településrész Veszprém megyében, Ajka város közigazgatási területén belül található. Ez a kis településrész a BAKONY hegység lábánál helyezkedik el, gyönyörű természeti környezetben. Ajka-Bakonygyepes leginkább a nyugodt, falusias hangulatáról ismert, bár közigazgatásilag Ajkához tartozik, ami egy jelentősebb város a környéken, erős ipari hagyományokkal, főként az alumíniumgyártás területén. A területre jellemzőek a bakonyi tájak, így az erdők, dombok és a vidéki nyugalom. Az esetleges elírások, információk és a változtatások jogát fenntartjuk! Amennyiben az ingatlan megvásárlásához el kell adnia jelenlegi otthonát, úgy annak és a teljes folyamatnak a lebonyolításában is állok rendelkezésre! További információkért forduljon hozzám bizalommal, hívjon a megadott telefonszámon - akár hétvégén is! AMIBEN MÉG SEGÍTENI TUDUNK: - Megbízható ügyvédi háttér - INGYENES, FÜGGETLEN hitelügyintézés - INGYENES, FÜGGETLEN biztosítási tanácsadás - Energetikai tanúsítvány és ingatlan értékbecslés készítése - Közművek és szolgáltatók átírása - Birtokbaadás lebonyolítása - Felújítások/Teljes kivitelezés - Riasztó rendszerek kiépítése - Kert- és tereprendezés - Ingatlan takarítás - Költöztetés 10 ÉVES SZAKMAI TAPASZTALATTAL!
https://ingatlanok.hu/elado/lakas/ajka/82-millio-ft;103-negyzetmeter;4-szoba;tegla-epitesu/11567049