Az értékesítő:
Ivanics Anita
+36 70 743 9189

Eladó családi ház Gyál, 249 900 000 Ft, 264 négyzetméter

249 900 000 Ft
családi ház, 264 négyzetméter
Építőanyag:
Tégla
Egész szobák:
6
Komfort fokozat:
Összkomfort
Fűtés módja:
Hőszivattyú
Ingatlan állapota:
Kitűnő
Azonosító:
11568337
Értékesítés típusa:
eladó
Ingatlan típusa:
családi ház
Jelleg:
Családi ház
Település:
Gyál
Alapterület:
264
Telekterület:
750
Ár:
249 900 000 Ft
Szintek száma:
1 szint
Fűtés jellege:
Geotermikus
Kor:
Új építésű
Terasz:
Van
Pince:
Nincs
Telekterület típusa:
négyzetméter
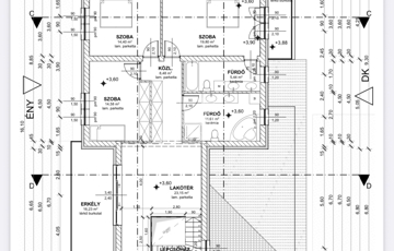
Eladó egy két szintes, luxus kivitelű családi ház Gyálon! Gyál egyik kedvelt részén kínálunk megvételre egy modern, tágas otthont, amely ideális választás nagycsaládosoknak és mindazoknak, akik a fényes, nagy tereket részesítik előnyben. Telek mérete: 750 m² Hasznos alapterület: nettó 264 m² (bruttó 285,79 m²) Szintek száma: 2 Szobák száma: 4 hálószoba + nappali az alsó és felső szinten is Fürdőszobák: 4 fürdő + külön WC Terasz: 21,2 m² Erkélyek: 16,23 m² és 7,53 m² Helyiségek elosztása: • Konyha: 12,96 m² • Nappali: 58,95 m² + 23,15 m² • Háztartási helyiség: 5,04 m² • Előszoba: 8,7 m² • Gardrób: 6,4 m² • Szobák: 14,58 m²; 14,4 m²; 19,8 m²; 14,4 m² • Közlekedő: 8,48 m² • Fürdőszobák: 11,61 m²; 7,68 m²; 6,75 m²; 5,44 m² Műszaki tartalom: • 30-as Leier falazat 15cm grafitos szigeteléssel, lábazat 10cm XPS szigeteléssel • Belső falak 10 cm Leier téglából • 20 cm kőzetgyapot födémszigetelés • Hőszivattyús rendszer + padlófűtés • 3 rétegű, energiatakarékos nyílászárók • Klíma nappaliban illetve minden szobában • Elektromos kapu, napelem-előkészítés • Beépített kamerarendszer és riasztó Finanszírozás és átadás: • Már 30% önerővel lefoglalható • Várható átadás: 2025. december 31. • Teljes körű segítség: független hitelszakértő és megbízható ügyvédi háttér Kivitelező: A házat egy megbízható, tapasztalt kivitelező építi, aki számos referenciamunkával rendelkezik a környéken. A korábbi projektek személyesen is megtekinthetők, így az érdeklődők saját szemükkel győződhetnek meg a minőségről. Elérhető vagyok a nap bármely szakaszában, akár hétvégén is !
https://ingatlanok.hu/elado/haz/gyal/250-millio-ft;264-negyzetmeter;6-szoba;geotermikus-futes/11568337