Az értékesítő:
Horváth Zoltán
+36 70 550 6680

Eladó családi ház Vecsés, 114 500 000 Ft, 124 négyzetméter

114 500 000 Ft
családi ház, 124 négyzetméter
Építőanyag:
Tégla
Egész szobák:
5
Komfort fokozat:
Dupla komfort
Ingatlan állapota:
Kitűnő
Azonosító:
11568705
Értékesítés típusa:
eladó
Ingatlan típusa:
családi ház
Jelleg:
Családi ház
Település:
Vecsés
Alapterület:
124
Telekterület:
300
Ár:
114 500 000 Ft
Kor:
Új építésű
Telekterület típusa:
négyzetméter
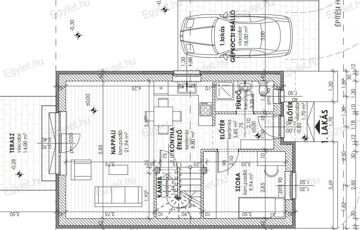
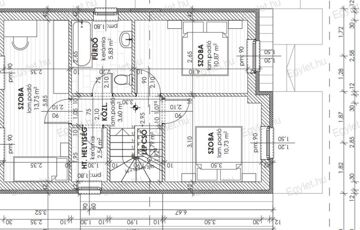
Megvételre kínálunk Vecsésen egy új építésű 124 m²-es, HŐSZIVATTYÚS, teraszos, 5 szobás, dupla komfortos, gardróbos, dupla garázsos, családiházat. A ház tájolása és elosztása kiváló, tágas, világos, nyitott nagy terekkel rendelkezik. Az ingatlan igényes kivitelezéssel, minőségi alapanyagokból, átgondolt tervezéssel, egyedi belső kialakítással készült, ahol a kényelem és az átgondolt tervezés mellett az energia takarékosság volt a fő szempont. Az ingatlan nappalija egy 14 nm-es teraszon keresztül kertkapcsolatos. Az ingatlan fűtéséről egy modern, energia takarékos, innovatív levegő-víz hőszivattyú gondoskodik H tarifás üzemeltetéssel. Ennek köszönhetően a rezsi költségek minimalizálódnak. Az ingatlan három darab inverteres  hűtő-fűtő klímával van felszerelve, így télen-nyáron egyöntetű kellemes a hőmérséklet. A használati melegvíz ellátás okos bojlerről történik.   A ház egy nagyobb telken fekszik, melyből kb. 280 nm privát kert. Gépjármű beállási lehetőségével a fedett térkövezett gépjármű beállón lehet biztonságosan parkolni. A kulcsrakész ár tartalmazza az elektromos redőny előkészítést, három rétegű nyílászárókat, riasztó előkészítést, kaputelefon és motoros kapu kiépítést, valamint a klíma előkészítés kiépítését.   AZONNAL KÖLTÖZHETŐ!   AJÁNDÉK KONYHABÚTORRAL!   Társasházi szerződéssel, albetétesítve, külön mérőórákkal.   Igénybe vehető lehetséges kedvezmények: - CSOK - 5% Áfa visszatérítés - Babaváró hitel - Illeték kedvezmény vagy mentesség   Helyiség lista a földszinten: - Előtér - Fürdőszoba - Amerikai konyha - Étkező - Kamra - Nappali  - Szoba - Terasz   Helyiség lista az emeleten: - Lépcsőház - Fürdőszoba - Közlekedő - Gardrób - Szoba - Szoba - Szoba   A hirdetés referencia fotókat is tartalmaz.   Az ingatlan biztonságos, nyugodt, csendes, kertes házas övezetében, Vecsés egyik legszebb részén található. A környék fejlett infrastruktúrájának köszönhetően bővelkedik a szociális intézményekben, bölcsőde, óvoda, általános iskola, orvosi intézmények, bevásárlási lehetőségek, találhatóak a közelben. Közlekedése kiváló, busszal vagy vonattal Budapest központja rövid idő alatt megközelíthető. Az M0-ás, M 4-es, valamint az M 5-ös autópályák pár perc alatt elérhetőek.   Hitel, CSOK igénylésben díjmentes ügyintézéssel állunk rendelkezésére! Nálunk kiválaszthatja az Ön számára legkedvezőbb ajánlatot. Várom megtisztelő érdeklődésüket.
https://ingatlanok.hu/elado/haz/vecses/115-millio-ft;124-negyzetmeter;5-szoba;nincs-megadva-futes/11568705