Az értékesítő:
Horváth Zoltán
+36 70 550 6680

Eladó családi ház Monor, 109 000 000 Ft, 120 négyzetméter

109 000 000 Ft
családi ház, 120 négyzetméter
Egész szobák:
4
Komfort fokozat:
Dupla komfort
Ingatlan állapota:
Kitűnő
Azonosító:
11568787
Értékesítés típusa:
eladó
Ingatlan típusa:
családi ház
Jelleg:
Családi ház
Település:
Monor
Alapterület:
120
Telekterület:
650
Ár:
109 000 000 Ft
Fűtés jellege:
Cirkó
Kor:
Új építésű
Telekterület típusa:
négyzetméter
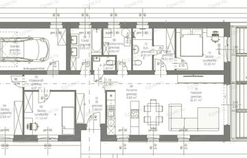
Megvételre kínálunk Monor egyik legszebb részén, egy új építésű, teraszos, 120 nm-es, 4 szobás, dupla fürdős + külön WC-s, garázsos, önálló családi házat. A terasz mérete 25,5 nm. Minőségi alapanyagokból, igényes kivitelezés jellemzi a projektet, ahol a biztonság és a kényelem mellett az energiatakarékosság volt a fő szempont. A ház átgondolt tervezésének köszönhetően kényelmes, otthonos, szellős, viszont ugyanakkor bővelkedik a reprezentatív, elegáns elemekkel. Az otthon melegéről, valamint a használati melegvíz ellátásáról egy modern, energia takarékos, kondenzációs gázcirkó fog gondoskodni. Ennek köszönhetően a rezsi költségek minimalizálódnak. A használati melegvíz ellátását egy hőszivattyús bojler fogja biztosítani. A nyári melegben pedig a két inverteres klíma fog gondoskodni a kellemes közérzetről. Ennél a beruházásnál most lehetősége van kompromisszumok nélkül egy olyan ingatlanba költözni, ahol Ön kiválaszthatja a hideg és meleg burkolatokat, szanitereket, valamint az egyéb kiegészítőket a családja legnagyobb megelégedésére, ez által személyre szabva álmai otthonát. Az ingatlan egy 650 nm-es telken helyezkedik el. Igénybe vehető lehetséges kedvezmények: CSOK 5% Áfa visszatérítés Babaváró hitel Illeték kedvezmény vagy mentesség. Az ingatlan árát a kulcsrakész állapotra adtuk meg. Helyiség lista: - Közlekedő - WC - Gardrób - Mosókonyha - Három hálószoba - kettő fürdőszoba - Amerikai konyha, - Étkező - Nappali - Terasz - Garázs Az ingatlan biztonságos, nyugodt, csendes, kertes házas övezetében, Monor egyik legszebb részén található. A környék fejlett infrastruktúrájának köszönhetően bővelkedik a szociális intézményekben, bölcsőde, óvoda, általános iskola, orvosi intézmények, bevásárlási lehetőségek, találhatóak a közelben. Közlekedése kiváló, az M4-es autópálya rövid alatt elérhető. Hitel, CSOK igénylésben díjmentes ügyintézéssel állunk rendelkezésére! Nálunk kiválaszthatja az Ön számára legkedvezőbb ajánlatot. Várom megtisztelő érdeklődésüket.
https://ingatlanok.hu/elado/haz/monor/109-millio-ft;120-negyzetmeter;4-szoba;cirko-futes/11568787