Az értékesítő:
Pamuk Katalin
+36 30 992 5934

Eladó lakás Érd, 86 400 000 Ft, 64 négyzetméter

86 400 000 Ft
lakás, 64 négyzetméter
Építőanyag:
Tégla
Egész szobák:
3
Komfort fokozat:
Összkomfort
Ingatlan állapota:
Kitűnő
Azonosító:
11568817
Értékesítés típusa:
eladó
Ingatlan típusa:
lakás
Település:
Érd
Alapterület:
64
Ár:
86 400 000 Ft
Emelet:
Földszint
Erkély:
Van
Kertkapcsolat:
Nincs
Kocsibeálló:
Nincs
Tároló:
Van
Lift:
Nincs
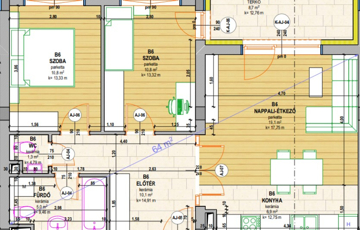
Kedves Ingatlankereső! Ajánlom figyelmébe ezt a most épülő Modern Társas házi lakást, az Aréna Rezidensben! Ez a társas-ház nem csupán egy ingatlan – ez egy életforma. A prémium kivitelezés, a természet közelsége és a modern technológia találkozása. A fejlesztő kiemelten kezeli a projektet, a tőle megszokott magas minőségben épít, számos referenciával rendelkezik. Igazi ritkaság a piacon! Az Otthon megtalálása egy Jó érzés, amikor megérkezik és megszületik a döntés, ami valóban majd egy Új Életre ad lehetőséget és egy Új Otthont jelent. Fontos, hogy az ingatlanvásárlás hosszú távon is értékálló befektetés legyen! A kivitelező törekszik arra,hogy magas minőségű,egyedi kivitelezésű ingatlant alkosson ezen a nem mindennapi környéken!! Az Ön dolga „csupán” a színek, burkolatok kiválasztása, hogy a munkálatok végeztével valóban otthon érezhesse magát! Szívesen lakna Érd egyik legjobb részén, inkább elkerülné a zsúfolt, panel lakótelepeket és nem szeretne egy 40 éves társasházban lévő lakás felújításával vesződni, ez a 2026 épülő társas-ház kiváló választás Önnek! Befektetőknek és igazából minden korosztály számára megfelelő, minden igényt kielégít. Itt ötvözve van az új, modern dizájn a mai igényeknek megfelelő kialakítással, az Ön álmai otthonának megvalósításához! Az energiahatékonyság jegyében HŐSZIVATTYÚ rendszert alkalmaznak, mely nagyon ENERGIATAKARÉKOS FELHASZNÁLÁST tesz lehetővé. Műszaki leírás: A lakások felszereltsége alapárra vonatkozóan: bejárati ajtó: (nem változtatható) műanyag vagy fém bejárati ajtó és 3 db kulccsal. belső nyílászárók: utólag elhelyezhető laminált felületű (szín választható), bevéső zárral, normál matt króm kilinccsel, és küszöb nélkül kerül beépítésre. (mintadarab). Amennyiben a vevő nem kéri, vagy más ajtó beépítését kéri, akkor az alábbi árakon kerülnek elszámolásra a belső nyílászárók: 75x210 beltéri ajtó 49.000.- bruttó 90/210 beltéri ajtó 49.000.- bruttó burkolatok: (változtatható)A nappali és a hálószobák laminált parketta padlóburkolattal, az egyéb helyiségek hálósan rakott mázas kerámialap padlóburkolattal készülnek. A WC-k és fürdőszobák falain 2,20 m magasságig, a konyhákban a tervezett beépítésnek megfelelően az alsó és felső elemek közti 60 cm magasságú sávban készül (mindenhol hálós formációban rakva) csempeburkolat. Az alábbi m2 anyag áru burkolatokat tartalmazza a lakás vételára: -a burkolási munkadíjban a 30 cm x 30 cm és a 30 cm x 60 cm burkolat van az árban. Egyedi ár képzése van az extra csempe vagy burkolat burkolási munkálatokban. Külön m2 ár munkadíj burkolattal megegyezés szerint. - falfülke - metro csempe - extra méretű csempe Pl 120 x 60 , 60 x 60 stb. plusz elszámolást igényel Ha a parketta helyett hideg burkolat lenne választva akkor annak a m2 plusz munkadíj és anyagköltség 18.000 Ft / m2 nettó összeg hidegburkolatok: – fali csempe: 8000.- bruttó – padló padlóburkolat: 8000.- bruttó – terasz: fagyálló kerámia burkolat egységes beruházó által biztosított melegburkolatok: – laminált parketta,: 6000.- bruttó Többlet hidegburkolási munka esetén a segédanyagok költségét és a burkolás munkadíját is felszámoljuk. belső ablakpárkányok:műanyag párkányok festés-mázolás: – falfelületek: alapozás, 2x glettelés, 2x diszperziós falfestés fehér színben (változtatható, színtől függően felár ellenében) szellőzők: az ablakkal nem rendelkező WC-k ill. fürdőszobák elektromos szellőzővel készülnek a tetőre vagy udvarba kivezetve Nyitott gépkocsi beálló : - 3.200.000 Ft + áfa 27 % Teremgarázst minden lakáshoz kötelező megvásárolni Teremgarázs hely vételára:: 5.000.000 Ft + áfa 27 % - tároló vételára 550.000 Ft + áfa / m2 27 % Méretük átlagosan 4-6 m2 vízellátás: (változtatható) A lakás vételára az alábbi szaniter árakat tartalmazza: – WC (fehér wc csésze falba építhető geberit öblítőtartállyal) _ Alföldi Bázis wc mélyöblítésű 15.000 Ft-ig bruttó – Mosdó (fehér) alföldi Kézmosó 40 cm x 25 cm 10.000 Ft-ig bruttó – Mosdó csaptelep Kludi egykaros 15.000 Ft-ig bruttó – Kád 170-es akril (fehér) 35.000 Ft-ig bruttó – Kádtöltő csaptelep Kludi egykaros 25.000 Ft-ig bruttó – Zuhany kialakítás egyedi megegyezés szerint (a fenti szaniterek és csaptelepek típusainak változtatási jogát a beruházó fenntartja, de csak azonos vagy jobb minőségűre cserélheti) Többlet szaniter beépítése esetén a segédanyagok költségét és a beépítés munkadíját is felszámoljuk. Mosógép csatlakozási lehetőség minden lakás fürdőszobájában biztosított. - minden lakáshoz külön víz almérő van fűtés a lakásban : - Egyéni hőszivattyús rendszer. (Kültéri egység a teraszokon lesz elhelyezve.) Fűtés a hőszivattyús lakásoknál vagy gáz fűtés elektromos hálózat: A lakásokhoz 1 fázisú 32 A –es mérő tartozik. (3 fázisú mérő felszerelését külön költség felszámítása mellett lehet igényelni). A mérő a lépcsőházi mérőszekrényben kerül elhelyezésre. A vételár magába foglalja az elektromos mérőket. A H tarifás mérőt külön kell majd igényelni a vevőnek ha készen van a hőszivattyús rendszer. Az áramkörök falhoronyban vezetett Mü-III. védőcsőbe húzott Mcu 1,5 rézvezeték eken haladnak, kivéve a tűzhely áramkörét, amelyhez Mcu 2,5 rézvezetéket alkalmazunk. A mennyezet világításhoz, a födémhez rögzítve Mbcu vezetéket építünk be. Az alapár fehér színű Legrand Niloé kapcsolókat és dugaszoló aljzatokat tartalmaz, a szerződés mellékletét képező helyiség könyvben szereplő mennyiségben. - előtér 1 db konnektor, 1 db kapcsoló, 1 db mennyezeti lámpa kiállás - fürdőszoba 3 db konnektor, 2 db lámpa kapcsoló, 1 db fali lámpa, 1 db mennyezet lámpa - tároló 2 db konnektor, 1 db mennyezet lámpa - nappali 8 db konnektor 2 db mennyezet lámpa, 3 db kapcsoló 1 db tv kiállás - konyha 4 db konnektor, 1 db tűzhely bekötés - szoba 4 db konnektor 1 db mennyezet lámpa, 1 db tv kiállás - erkély 1 db konnektor 1 db mennyezet lámpa, 1 db kapcsoló A további plusz szerelvények darabonként 25.000 Ft plusz költségbe kerül. Lámpák felszerelése darabonként 5.000 Ft plusz költségbe kerül. Led világítás extra villanyszerelés, riasztó további megegyezés tárgyát képezi, plusz költsége van. A világítótestek csak a közös tulajdonú épületrészekben (lépcsőház, garázsszint, lépcsőházi bejárat külső világítása) és az erkélyeken kerülnek beépítésre. A világítótestek kiállásai vezeték csatlakozókkal ellátott A lakás alapfelszereltsége nem tartalmazza: a konyhabútort és a beépített szekrényt. a mosogató csaptelepet és lefolyó szifont. a világítótesteket klímát A tervektől és a műszaki tartalomtól eltérő igények kielégítésére -amennyiben azt az adott időpontban az építkezés fázisa lehetővé teszi- külön megállapodás szerint, költség egyeztetéssel van lehetőség. A változást ábrázoló tervrajzok alapján árajánlat készül, mely a vevő aláírása után megrendelésre válik. A hírdetésben megjelent külső látványtervek az engedélyezett ház tervei. Azaz a leendő végleges formát tükrözik. Ez az ingatlanok részleteiben igen gazdag elgondolás szerint lesznek megépítve. Tapasztalt a kivitelező cég, így megannyi referencia munkával igazolható, hogy a megálmodástól a megvalósításhoz vezető út nem csak egy illúzió. Az építkezés során szigorúan csak a legmagasabb minőségű anyagokat fogja a kivitelező felhasználni, hogy igazán exkluzív otthont hozzon létre. Mindemellett számítunk az Ön igényeinek bevonásaira is, burkolatok és szaniterek és egyéb kiegészítők tekintetében. B 1-ES Lakás - TÁRSASHÁZI ALAPÍTÓ OKIRAT, SAJÁT ALBETÉT LAKÁSONKÉNT Kíváncsi? Amennyiben az ajánlatom felkeltette az érdeklődését, kérem keressen telefonon. Szép napot és sikeres vásárlást kívánok Önnek!
https://ingatlanok.hu/elado/lakas/erd/86-millio-ft;64-negyzetmeter;3-szoba;tegla-epitesu/11568817