Az értékesítő:
Vajda Eszter
+36 70 374 8484

Eladó üdülő/nyaraló Siófok, 37 500 000 Ft, 36 négyzetméter

37 500 000 Ft
üdülő/nyaraló, 36 négyzetméter
Építőanyag:
Fa
Egész szobák:
1
Azonosító:
11568907
Értékesítés típusa:
eladó
Ingatlan típusa:
üdülő/nyaraló
Jelleg:
Üdülő
Település:
Siófok
Alapterület:
36
Telekterület:
398
Ár:
37 500 000 Ft
Építési év:
21-50 éves
Telekterület típusa:
Négyzetméter
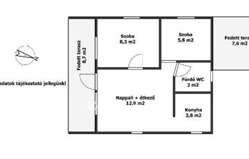
Balaton közeli nyaraló eladó Siófokon, Szabadifürdőn. Siófok kedvelt városrészében, Szabadifürdőn kínálunk eladásra egy 36 m2-es, nappali + 2 hálószobás, hőszigetelt faházat. Az ingatlan a Balaton-parttól és a Galerius Élményfürdőtől mindössze 1500 méterre található, könnyedén megközelíthető akár gyalogosan, akár kerékpárral. A ház egy 398 m2-es, körbekerített telken szabadon állóan helyezkedik el, a hátsó kertben fedett terasz és szerszámtároló áll rendelkezésre. Parkolási lehetőség a zárt udvarban adott. Az ingatlan villany- és víz közművekkel rendelkezik, melegvíz ellátás villanybojlerrel megoldott. A mindennapi kényelemhez szükséges szolgáltatások szintén elérhető közelségben vannak: buszmegálló, vasútállomás, egész évben nyitva tartó ABC, valamint a Sanyi Sarok étterem körülbelül 1200 méterre található. Ez a nyaraló ideális választás lehet családi pihenésekhez, de akár befektetésként, kiadás céljára is kiváló lehetőség. Bővebb információért keressen bizalommal telefonon! Az energetikai tanúsítvány készítése folyamatban van, amint rendelkezésre áll, úgy azzal a hirdetés frissítésre kerül. Referencia szám: M313587
https://ingatlanok.hu/elado/udulo_nyaralo/siofok/38-millio-ft;36-negyzetmeter;3-szoba;udulo-jellegu/11568907