Az értékesítő:
Tripsó Ildikó
+36 30 905 5419

Eladó családi ház Debrecen, 123 900 000 Ft, 180 négyzetméter

123 900 000 Ft
családi ház, 180 négyzetméter
Építőanyag:
Szilikát
Egész szobák:
6
Ingatlan állapota:
Felújított
Azonosító:
11569002
Értékesítés típusa:
eladó
Ingatlan típusa:
családi ház
Jelleg:
Családi ház
Település:
Debrecen
Alapterület:
180
Telekterület:
1000
Ár:
123 900 000 Ft
Fűtés jellege:
Cirkó
Terasz:
Van
Erkély:
Nincs
Beépíthető tetőtér:
Nincs
Melléképület:
Nincs
Pince:
Nincs
Klíma:
Nincs
Telekterület típusa:
négyzetméter
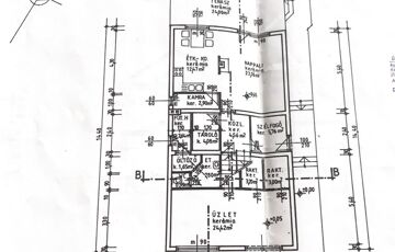
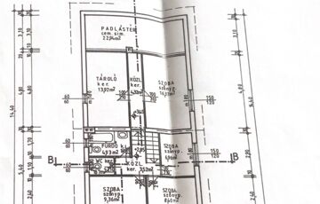
Eladó szépen felújított, tágas családi ház Józsa csendes, rendezett környékén – cserelehetőséggel Ha egy felújított, nagyvonalú terekkel rendelkező családi házra vágyik, amelyben kényelmesen elfér egy többgyermekes család, vagy akár vállalkozás és otthon egyben is megvalósítható, akkor ez az ingatlan ideális választás lehet az Ön számára. A 180 m²-es, szilikátból épült ház Józsa nyugodt, mégis jól megközelíthető részén található, 1000 m²-es, rendezett telken. A ház teljes körű felújításon esett át, így modern komfortot kínál, megőrizve a klasszikus, otthonos hangulatot. A földszinten egy tágas nappali, étkező és konyha található, melyek harmonikusan kapcsolódnak egymáshoz, így ideális teret biztosítanak a családi együttlétekhez és vendégfogadáshoz. Az ingatlanban összesen öt hálószoba kapott helyet, ami lehetővé teszi, hogy minden családtagnak saját, kényelmes élettere legyen. A két különálló fürdőszoba és WC szintén a kényelmet és a praktikus mindennapokat szolgálja. A 30 m²-es, fedett terasz kiváló helyszín a pihenésre, baráti összejövetelekre vagy családi étkezésekre, miközben kilátás nyílik a kertre. Külön említést érdemel a 87 m²-es, szigetelt műhely, amely tökéletes választás lehet vállalkozók, kézművesek, autószerelők, barkácsolást kedvelők vagy akár otthoni iroda kialakítása számára is. Az épület méretének köszönhetően sokrétűen hasznosítható. Az udvaron akár 10 autó parkolása is kényelmesen megoldható, így a parkolás semmilyen körülmények között nem jelent problémát. Főbb jellemzők: 180 m² lakótér, tágas, világos helyiségek Szilikát falazat – masszív, jól hőszigetelő szerkezet Nappali + 5 külön nyíló szoba 2 fürdőszoba, 3 WC 30 m²-es, fedett terasz 87 m²-es, szigetelt műhely / melléképület 1000 m²-es, parkosított, rendezett telek Akár 10 autó számára is alkalmas udvar felújított, azonnal költözhető állapot Fúrott kút Cserelehetőség: A tulajdonos cserelehetőséget is mérlegel: szívesen cserélne földszintes, 80–90 m²-es, 3 szobás családi házra a Balatontól legfeljebb 20 km-re (Tapolcáig), vagy a Bükk–Mátra térségében. Ez a lehetőség ideális azoknak, akik nyugodt, tágas otthonra vágynak, de rugalmasan gondolkodnak az ingatlancserében is. Összegezve: Ez az ingatlan tökéletes választás mindazoknak, akik minőségi, gondosan karbantartott otthont keresnek kiváló adottságokkal. A ház nagy alapterületével, jól átgondolt elrendezésével és sokoldalú melléképületével egyaránt kiszolgálja a családi élet és a vállalkozás igényeit. Tágas,terek, igényes kivitelezés, biztonságos és nyugodt környezet , valóban élhető otthon várja új tulajdonosát. Amennyiben hirdetesem felkeltette érdeklődését kérem, vegye fel velem a kapcsolatot megtekintés céljából. Az ár IRÁNYÁR ! TRIPSÓ ILDIKÓ +36 30 9055419 ingatlanértékesítő Városi Ingatlaniroda Debrecen (További képekért és információkért kérem hívjon!)
https://ingatlanok.hu/elado/haz/debrecen/124-millio-ft;180-negyzetmeter;6-szoba;cirko-futes/11569002