Az értékesítő:
Némethné Zsuzsa
+36 70 412 3861

Eladó iroda/üzlethelyiség Debrecen, Belváros, 32 200 000 Ft, 21 négyzetméter

32 200 000 Ft
iroda/üzlethelyiség, 21 négyzetméter
Azonosító:
11569235
Értékesítés típusa:
eladó
Ingatlan típusa:
iroda/üzlethelyiség
Jelleg:
Iroda
Település:
Debrecen
Alapterület:
21
Ár:
32 200 000 Ft
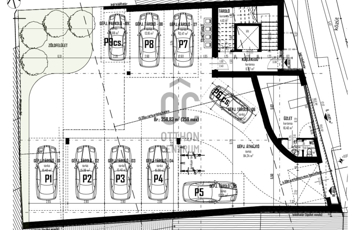
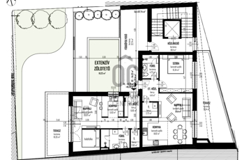
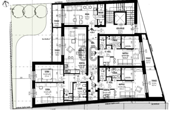
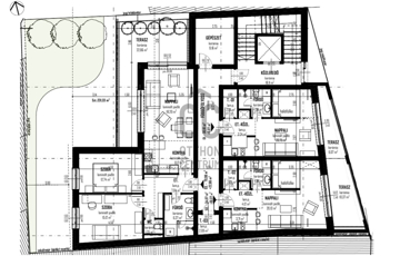
IRODA CSENDES TEVÉKENYSÉGRE ELADÓ: Belső udvarra néző, liftes társasház I. emeltén : - 17 nm-es iroda - 4 nm-es tusolóval felszerelt mosdó kialakítással - 5 nm-es erkélykapcsolattal. Akinek fontos a belváros nyújtotta előnyök, de mégis szüksége van a csendes légkörre, ideális választás lehet saját vagy cégének telep ill. székhely kiválasztásához! Vételár: 32.200.000.- + ÁFA Projekt bemutatása Belváros szívében, Nagytemplomtól 500 méterre épül a 8 lakásos, liftes társasház. Az értékesítés elkezdődött!!!! Földszinten 1 db üzlethelyiség és fedett/nyitott gépjárműtárolók (8MFt + ÁFA), melyek megvásárlása nem szükségszerű! Az I. és II. emeletén 3 - 3 lakás, melyek garzon (nappali + hálófülke) és nappali + 2 hálós kialakításuak. A III. emeleten 2 lakás, melyből az egyik garzon, míg a másik nappali + 1 hálós. A modern és ízléses külsőhöz egyedi elosztású, élhető terekkel rendelkező, napfényes lakásokat terveztek, házközpontú kondenzációs gázkazánnal (fan-coil) fűtés-hűtés, hőszigetelt nyílászárókkal, minőségi szaniterekkel. A beruházó és kivitelező múltja és referenciái, garancia a minőségi és egyben megbízható projektnek! KÖZPONTI ELHELYEZKEDÉS, KIVÁLÓ KÖZLEKEDÉS: A Hal köz párszáz méterre kávézókkal, éttermekkel, teraszokkal várja a vendégeket. Villamos és buszközlekedés csak séta távolságra, mellyel a város bármelyik pontjára könnyen eljuthatunk. A kiváló infrastruktúrának köszönhetően az ingatlanok értékállóak. Ideális mindazok számára, akik szeretnek a belvárosban élni és az ezzel járó számos előnyt élvezni! A lakások - akár külföldi - bérlők igényeit is kielégítő, könnyen bérbe adható, ízléses apartmanokká alakíthatóak! Válasszon az alábbi lehetőségek közül, ha Önnek fontos a belváros nyújtotta kedvező adottság, illetve az értékállóságot keresi jövőjét illetően! Várható átadás: 2026. III. negyedév. Hitelügyintézést banki kollégánk teljeskörűen és ingyen bonyolítja Önnek irodánkban, de akár otthonában is!
https://ingatlanok.hu/elado/iroda/debrecen/32-millio-ft;21-negyzetmeter;iroda-jellegu;nincs-megadva-berendezett/11569235