Az értékesítő:
Fodor Norbert
+36 20 943 0187

Eladó családi ház Gyömrő, 104 900 000 Ft, 89 négyzetméter

104 900 000 Ft
családi ház, 89 négyzetméter
Építőanyag:
Tégla
Egész szobák:
3
Komfort fokozat:
Összkomfort
Ingatlan állapota:
Kitűnő
Azonosító:
11569299
Értékesítés típusa:
eladó
Ingatlan típusa:
családi ház
Jelleg:
Ikerház
Település:
Gyömrő
Alapterület:
89
Telekterület:
155
Ár:
104 900 000 Ft
Kor:
Új építésű
Terasz:
Van
Erkély:
Nincs
Telekterület típusa:
négyzetméter
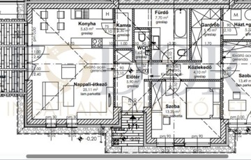
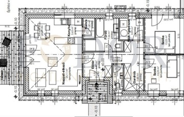
Gyömrőn a kastélydomb lakóparkban csendes, nyugodt környezetben, eladásra kínálok egy nappali + 2 hálószobás, Gardróbos, teraszos, új építésű, hőszivattyús ikerházi lakást, amely a korszerű technológia és a prémium kivitelezés tökéletes ötvözete. A lakások 2 x Porotherm 30-as téglafallal kapcsolódik közte 5 cm-es szigeteléssel, így a lakások közt az áthallás kizárt!!! Az építkezés folyamatosan halad, így ön végig követheti épülő ingatlanja építését, referenciaházak a közelben megtekinthetők. Ez az otthon a legmodernebb technológiával épült, levegő-víz hőszivattyúval, amely garantálja az alacsony fenntartási költségeket, padlófűtéssel maximalizálja a komfortérzetet. A lakások élhető, világos terekkel rendelkeznek. Az amerikai konyhás nappali mellett kettő hálószoba található, 1 fürdőszoba Wc-vel, külön Wc, valamint egy praktikus kamra is helyet kapott a házban. Az ikerház egymás mögött helyezkedik el egy 1290 m²-es telken, amely kerítéssel megosztott, így mindkét lakáshoz saját, privát kert tartozik. A lakások Társasházi alapító okirattal kerülnek átadásra. A hirdetésben feltüntetett alaprajz a leendő vásárló igényei szerint módosítható: akár három szobás, nappali-konyha elrendezés is kialakítható a kérésére! Az ingatlan paraméterei: 1. lakás (utcafront felőli) Elrendezését lásd az alaprajzon!!! • Alapterület: 89.5 m² • Telekterület: 155 m² • Terasz: 18.49 m² • Vételár: 104.900.000 MFt Az ingatlan paraméterei: 2. lakás (udvar felőli) Elrendezését lásd az alaprajzon!!! • Alapterület: 86.7 m² • Telekterület: 262 m² • Terasz: 18.49 m² • Vételár: 109.900.000 MFt Műszaki tartalom: • A fűtés és a meleg víz biztosítása Midea Concept 8 KW-os levegő-víz hőszivattyúval (beépített 190 literes HMV tartállyal) történik. • 30 cm-as főfalak 16 cm szigeteléssel • Hőszigetelt, fehér, 3 rétegű üvegezésű nyílászárók elektromos redőnnyel • Vasbeton sávalap, fafödém 30 cm-es kőzetgyapot szigeteléssel. További extrák: • Elektromos kapu + motor az árban • Kerítéssel leválasztott, privát telekterület • Külső ablakpárkányok mészkőből készülnek Elhelyezkedés és környezet: Az ingatlan egy csendes mellékutcában található, ugyanakkor minden fontos kiszolgáló egység – iskola, óvoda, piac és tömegközlekedés – pár perc sétára elérhető. Az ingatlan kulcsrakész állapotban kerül átadásra. Várható átadás: 2026 2.-3. negyedév. Megbízható, precíz kivitelező által épített, exkluzív otthon, amely minden igényt kielégít. Hívjon most a részletekért, és tekintse meg személyesen! TANÁCSADÁSSAL, SZÁMOS BANK AJÁNLATÁVAL ÉS AZ ÚJ CSOK PLUSZ FOLYÓSÍTÁSÁVAL VÁRJA ÜGYFELEIT!
https://ingatlanok.hu/elado/haz/gyomro/105-millio-ft;89-negyzetmeter;3-szoba;nincs-megadva-futes/11569299