Az értékesítő:
BERMUDA OFFICE Kft.
+36 20 563 5501

Eladó családi ház Pilisszántó, 129 900 000 Ft, 200 négyzetméter

129 900 000 Ft
családi ház, 200 négyzetméter
Egész szobák:
5
Ingatlan állapota:
Azonosító:
11569368
Értékesítés típusa:
eladó
Ingatlan típusa:
családi ház
Jelleg:
Családi ház
Település:
Pilisszántó
Alapterület:
200
Telekterület:
850
Ár:
129 900 000 Ft
Szintek száma:
2 szint
Fűtés jellege:
Egyedi
Telekterület típusa:
négyzetméter
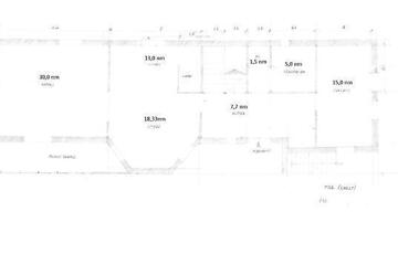
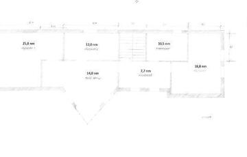
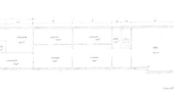
PILISSZÁNTÓN ELADÓ EGY ÖNÁLLÓ CSALÁDI HÁZ! A KÖRNYÉK: Pilisszántón egy nyugodt, zöldövezeti környezetben, de mégis aszfaltozott úton helyezkedik el, a házból gyönyörű panoráma nyílik az egész pilisre. Buszmegálló 19 perc sétára helyezkedik el, ahonnan busszal könnyen megközelíthető Budapest is. A HÁZ JELLEMZŐI: - A ház alapterülete 200 nm. -Plusz egy 100 nm-es szuterén, ahol egy 40 nm-es dupla beállásos garázs is található. -Plusz egy 22 nm-es fedett, és egy 17 nm-es beépített terasz. -Telek mérete: 850 nm. -A+-os energetikai tanúsítvány. -1996-ban épült, 30-as Ytong téglából, 20 cm-es grafitos hőszigetelést kapott, amire 4 cm-es perlit vakolat került. -Továbbá kapott egy 10 cm-es aljzat szigetelést. -2023-ban teljes tetőcserén esett át, a tetőt szürke Bramac betoncserép fedi. -A födém fa, 20 cm kőzetgyapot szigeteléssel. -A fűtésért egy gázkazán felel, a csövezete réz. -A radiátorok újak, nemrég cserélésre kerültek. -A melegvizet egy Arison hőszivattyús bojler, illetve egy villanybojler is elő tudja állítani. -4 db inverteres klíma található az ingatlanban. -A villanyhálózat vezetékezése réz, 1x32 Amper. -Riasztórendszer is kialakításra került. -A nyílászárók a földszinten, a konyhában és a dolgozószobában 3 rétegű műanyagok, a többi helyiségben két rétegűek, fa, Sofa ablakok, redőnnyel felszereltek, az étkező és a nappali kivételével. -16 db Napelem is kiépítésre került, ami 6,5 KW-os, még szaldós. -A nappaliban található egy cserépkályha, a szuterénben pedig egy kandalló. -A szuterénben szintén megtalálható egy szauna, egy sófal, illetve egy edzőterem is. -Kialakításra került egy borospince is. FINANSZÍROZÁS: Banki finanszírozással is megvásárolható, melyben irodánk ingyenes tanácsadással áll rendelkezésükre! VEVŐINK RÉSZÉRE A KÖZVETÍTÉS DÍJTALAN! A hirdetésben szereplő adatok tájékoztató jellegűek.
https://ingatlanok.hu/elado/haz/pilisszanto/130-millio-ft;200-negyzetmeter;5-szoba;egyedi-futes/11569368