Az értékesítő:
Kovács Andrea
+36 30 739 8034

Eladó lakás Pécs, 109 900 000 Ft, 102 négyzetméter

109 900 000 Ft
lakás, 102 négyzetméter
Építőanyag:
Tégla
Egész szobák:
4
Ingatlan állapota:
Kitűnő
Azonosító:
11569801
Értékesítés típusa:
eladó
Ingatlan típusa:
lakás
Település:
Pécs
Alapterület:
102
Ár:
109 900 000 Ft
Emelet:
3. emelet
Fűtés jellege:
Cirkó
Építési év:
21-50 éves
Erkély:
Van
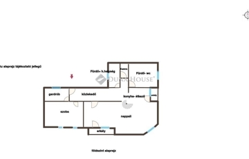
Eladó belvárosi, tágas téglalakás Pécs szívében!Pécs belvárosában kínálunk megvételre egy 102 nm-es, galériás téglalakást, amely tökéletes választás lehet családoknak vagy akár befektetés céljára is. Az ingatlan főbb jellemzői:- Amerikai konyhás nappali + 3 szoba- 2 fürdőszoba, 2 Wc- 2 erkély, amelyek kellemes kikapcsolódási lehetőséget biztosítanak- gáz- cirkó fűtés, alacsony fenntartási költséggel- tágas, világos terek és praktikus elosztás - galériás kialakítás, ami különleges hangulatot kölcsönöz az otthonnak.Az ingatlan kiváló elhelyezkedésének köszönhetően minden fontos szolgáltatás, bolt iskola, egyetem, valamint a belváros pezsgő élete néhány perc sétával elérhető.Amennyiben egy egyedi, jól alakítható, nagy alapterületű belvárosi otthont keresel, ez a lakás remek lehetőség!
https://ingatlanok.hu/elado/lakas/pecs/110-millio-ft;102-negyzetmeter;4-szoba;tegla-epitesu/11569801