Eladó lakás Pécs, 109 900 000 Ft, 102 négyzetméter
        
            
                
                    
                        109 900 000 Ft
                        
                            lakás, 102 négyzetméter                        
                                                    
                                                    
                                                    
                                Ingatlan állapota: 
                                Kitűnő
                             
                                                    
                                                    
                                Értékesítés típusa: 
                                eladó
                             
                                                    
                                                    
                                                    
                                                    
                                                    
                                                    
                                                    
                                                    
                        
                     
                 
                
             
         
        
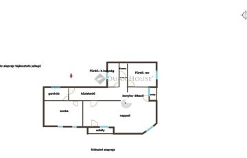
                            Eladó belvárosi, tágas téglalakás Pécs szívében!Pécs belvárosában kínálunk megvételre egy 102 nm-es, galériás téglalakást, amely tökéletes választás lehet családoknak vagy akár befektetés céljára is.Az ingatlan főbb jellemzői:- Amerikai konyhás nappali + 3 szoba- 2 fürdőszoba, 2 Wc- 2 erkély, amelyek kellemes kikapcsolódási lehetőséget biztosítanak- gáz- cirkó fűtés, alacsony fenntartási költséggel- tágas, világos terek és praktikus elosztás; galériás kialakítás, ami különleges hangulatot kölcsönöz az otthonnak.Az ingatlan kiváló elhelyezkedésének köszönhetően minden fontos szolgáltatás, bolt iskola, egyetem, valamint  belváros pezsgő élete néhány perc sétával elérhető.Amennyiben egy egyedi, jól alakítható, nagy alapterületű belvárosi otthont keresel, ez a lakás remek lehetőség!                    
        
            https://ingatlanok.hu/elado/lakas/pecs/110-millio-ft;102-negyzetmeter;4-szoba;tegla-epitesu/11569805