Az értékesítő:
Csomor István Mihály
+36 20 941 7376

Eladó lakás Szeged, 79 872 330 Ft, 72 négyzetméter

79 872 330 Ft
lakás, 72 négyzetméter
Építőanyag:
Tégla
Egész szobák:
3
Komfort fokozat:
Összkomfort
Ingatlan állapota:
Épülő
Azonosító:
11569868
Értékesítés típusa:
eladó
Ingatlan típusa:
lakás
Település:
Szeged
Alapterület:
72
Ár:
79 872 330 Ft
Emelet:
Földszint
Fűtés jellege:
Hőszivattyú
Építési év:
Új építésű
Erkély:
Van
Lift:
Van
Klíma:
Van
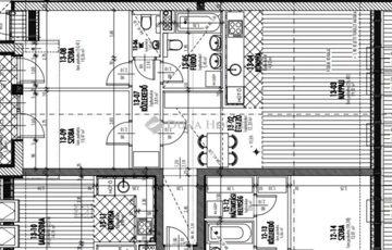
ÚJ LAKÁSOK ELÉRHETŐ ÁRON!Szeged-Alsóváros, Apáca utca közelében 11 lakásos, liftes, kulcsrakész társasház épül, a földszinten 3 db irodával, 6 db garázzsal és 8 db zárt udvari parkolóval. A modern, 5 szintes épület ( fsz., 1.em., 2.em., 3.em. , 4. em.(tetőtér) ) lakásai változatos méretben készülnek, erkéllyel , loggiával rendelkeznek.A lakásokhoz opcionálisan zárt udvari parkoló 2,9 M Ft-ért vagy garázs 8,7 M Ft-ért vásárolható.Várható szerkezetkész átadás: 2024.I.n.évA 13/A. számú lakás az épület 4. emeletén (tetőtér) található, alapterülete nettó 72,73 m2 m2, melyben nappali, konyha-étkező, 2 félszoba , fürdő és loggia került kialakításra.A környezettel való kapcsolatot az 5,94 m2-es loggia biztosítja.Össz terület: 72,73 m2 (1/2 loggiával )Az ingatlan használati megosztással (saját mérőórák) eladó, a közös 4,22 m2-es előtérből nyílik a szomszédos 13/B lakás.Néhány műszaki jellemző:Falazat:- körítő főfalak POROTHERM 30 N+F falazó tégla,- a lakások közötti hanggátló falak SILKA HM 250 NF + GT 25 cm téglából készülnekFűtés – hűtés:- a lakások fűtési illetve hűtési energiaigényét az udvari gépészeti térben elhelyezett 3 db STIEBEL ELTRON HPA-0 13 C Premium tipusú háromfázisú inverteres levegő hőszivattyú biztosítja-a mennyezet fűtési-hűtési rendszer lakásonként egy-egy külön osztó-gyűjtővel csatlakozik a központi hálózatra- napelem előkészítésNyílászárók:- 6 kamrás műanyag nyílászárók 3 rétegű üvegezésselAz épület 10 cm-es grafitos hőszigetelést kap.Az ingatlan elhelyezkedése kiváló, hiszen a Belváros bármely pontja néhány perc alatt elérhető.Közvetlen közelében villamosmegálló, klinikák valamint számos oktatási intézmény található.Az autóút mellett európai szintű kerékpár- és gyalogúton be is sétálhatunk vagy kerekezhetünk a Belvárosba.Ajánlom azoknak, akik modern otthont szeretnének, de befektetési célra is remek lehetőség.MINDEN TOVÁBBI RÉSZLETTEL, VALAMINT MŰSZAKI ALAPRAJZZAL ÉS SZEMÉLYESMEGTEKINTÉSSEL KAPCSOLATBAN VÁROM HÍVÁSÁT!FORDULJON HOZZÁM BIZALOMMAL!
https://ingatlanok.hu/elado/lakas/szeged/80-millio-ft;72-negyzetmeter;3-szoba;tegla-epitesu/11569868