Az értékesítő:
Tréki-Simonyi Anett
+36 70 716 9641

Eladó családi ház Hajdúsámson, 95 000 000 Ft, 102 négyzetméter

95 000 000 Ft
családi ház, 102 négyzetméter
Egész szobák:
4
Ingatlan állapota:
Kitűnő
Azonosító:
11569926
Értékesítés típusa:
eladó
Ingatlan típusa:
családi ház
Jelleg:
Ikerház
Település:
Hajdúsámson
Alapterület:
102
Telekterület:
427
Ár:
95 000 000 Ft
Fűtés jellege:
Cirkó
Terasz:
Nincs
Erkély:
Nincs
Melléképület:
Nincs
Pince:
Nincs
Parketta:
Nincs
Kábel TV:
Nincs
Telekterület típusa:
négyzetméter
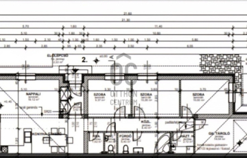
Eladásra kínálunk egy 102 m²-es, kulcsrakész állapotú ikerházat, amely 425 m²-es telken helyezkedik el, Sámsonkert legfrekventáltabb részén, az S Box bevásárlóközpont közelében. Főbb jellemzők: ✔ 3 kényelmes szoba + tágas nappali amerikai konyhával ✔ Fürdő + külön WC, mosókonyha, kamra ✔ Terasz közvetlen kijárattal a nappaliból ✔ Korszerű 15 cm külső hőszigetelés – alacsony fenntartási költségek ✔ Elektromos garázskapu + udvari beálló ✔ Szúnyoghálós ablakok a nyugodt, rovarmentes nyári estékhez A ház kiváló elrendezésének és modern kialakításának köszönhetően családok számára tökéletes választás. A környék rendezett, a közlekedés kiváló, így a városközpont és a környező települések is gyorsan elérhetők. Ne hagyja ki ezt a remek lehetőséget – hívjon most, és tekintse meg személyesen!
https://ingatlanok.hu/elado/haz/hajdusamson/95-millio-ft;102-negyzetmeter;4-szoba;cirko-futes/11569926