Az értékesítő:
Lőkös Zoltán
+36 70 429 5999

Eladó lakás Miskolc, Csabai-kapu, 28 950 000 Ft, 50 négyzetméter

28 950 000 Ft
lakás, 50 négyzetméter
Építőanyag:
Tégla
Egész szobák:
2
Komfort fokozat:
Összkomfort
Ingatlan állapota:
Felújított
Azonosító:
11570037
Értékesítés típusa:
eladó
Ingatlan típusa:
lakás
Település:
Miskolc
Alapterület:
50
Ár:
28 950 000 Ft
Tulajdonviszony:
Saját
Emelet:
3. emelet
Fűtés jellege:
Konvektoros
Elhelyezkedés:
Társasház
Pince:
Van
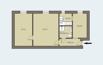
Miskolc Csabai kapu városrészében, a Csabai kapu utca 49 sz. alatt, földszint +3 emelet + tetőtér beépítéses, téglaépítésű társasház 3. emeletén, napfényes, parkra néző, 50 nm-es, felújított, kis rezsijű, 2 szobás lakás, 4 nm- es pincével, kiváló lakóközösségben eladó. A környéken kifejezetten csendes, remek tömegközlekedési kapcsolatokkal és bevásárlási lehetőségekkel rendelkezik. Közvetlen közelben rendelő, iskola, óvoda stb. Tárgyi ingatlan utolsó felújításai: - fürdőszoba + konyha teljes körű felújítása, illetve padló és falburkolatok cseréje - épületgépészeti felújítás (víz és villany vezetékek cseréje), redőnnyel felszerelt műanyag kétrétegű hőszigetelt nyílászárók beépítése. Helyiséglista: - 2 szoba, előszoba, konyha, étkező, fürdőszoba WC-vel, 4 nm-es pince Ár: 28,95 M Ft További információért kérem keressen telefonon!
https://ingatlanok.hu/elado/lakas/miskolc/29-millio-ft;50-negyzetmeter;2-szoba;tegla-epitesu/11570037