Az értékesítő:
Keményné Erdősi Zsuzsanna
+36 30 242 7182

Eladó ipari ingatlan Mohács, 600 000 000 Ft, 13 500 négyzetméter

600 000 000 Ft
ipari ingatlan, 13 500 négyzetméter
Ingatlan állapota:
Átlagos
Azonosító:
11570144
Értékesítés típusa:
eladó
Ingatlan típusa:
ipari ingatlan
Jelleg:
Egyéb
Település:
Mohács
Alapterület:
13500
Ár:
600 000 000 Ft
Telekterület típusa:
Négyzetméter
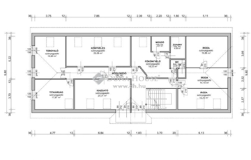
Eladó ipari ingatlan Mohács iparterületén – Kiváló lehetőség vállalkozásának! Mohács ipari övezetében, kiváló infrastruktúrával rendelkező, összközműves ipari ingatlan várja új tulajdonosát. Az ingatlan ideális választás gyártási, raktározási vagy egyéb ipari tevékenységekhez Kiemelt jellemzők: Telekterület: ~13.500 m² Üzemi épület: ~2.290 m² Irodaépület: ~340 m² Műhelyépület: ~180 m² Portaépület: ~35 m² Miért válassza ezt az ingatlant? Kiváló megközelíthetőség: Az ingatlan kamionok számára is könnyen elérhető, az üzemi épület körbejárhatósága biztosított. A nagy belmagasságú ipari kapukon keresztül, gördülékeny anyagmozgatás lehetséges. Kiváló közműellátottság: Az ingatlan összközműves, a közművek ipari méretekben elérhetők. Fenntarthatóság: Az üzemi épület áramellátását egy 130 KW-os napelemrendszer támogatja. A fűtést modern fa-aprítékos kazán biztosítja, új thermoventillátorokon keresztül, amely költséghatékony üzemeltetést biztosít. Biztonság: Az épületen kívül és belül kamerarendszer került kiépítésre, a teljes terület körbekerített. Ez az ingatlan tökéletes alapot biztosít vállalkozása számára, legyen szó gyártásról, logisztikáról vagy egyéb ipari tevékenységről! További információért vagy megtekintési igény esetén keressen bizalommal.
https://ingatlanok.hu/elado/ipari_ingatlan/mohacs/600-millio-ft;13500-negyzetmeter;egyeb-jellegu;nincs-megadva-tulajdonviszony/11570144