Az értékesítő:
Vargová Eva
+36 70 427 7702

Eladó lakás Budapest VI. ker, 109 900 000 Ft, 71 négyzetméter

109 900 000 Ft
lakás, 71 négyzetméter
Építőanyag:
Tégla
Egész szobák:
2
Komfort fokozat:
Komfort
Ingatlan állapota:
Azonosító:
11570382
Értékesítés típusa:
eladó
Ingatlan típusa:
lakás
Település:
Budapest VI. ker
Alapterület:
71
Ár:
109 900 000 Ft
Tulajdonviszony:
Saját
Emelet:
2. emelet
Fűtés jellege:
Cirkó
Kilátás:
utcai
Építési év:
50 évesnél régebbi
Erkély:
Nincs
Pince:
Nincs
Tároló:
Nincs
Lift:
Van
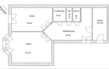
Diplomatanegyed szívében – világos, különnyíló szobás lakás eladó liftes házban. Elhelyezkedés: Diplomatanegyed, frekventált környék. Emelet: 2. emelet (liftes ház). Szobák: 2 + ½ . Fűtés: gáz cirkó. Állapot: jó állapotú. Közművek: minden mért fogyasztás alapján fizetendő. Ez a napfényes, kiváló elrendezésű lakás Budapest egyik legpatinásabb városrészében, a Diplomatanegyed frekventált, mégis kellemesen élhető részén található. A 23 m²-es nappali gyönyörű félköríves panorámaablakával különleges atmoszférát teremt, amely ritkaságszámba megy ezen a környéken. A nappali mellett két külön nyíló hálószoba, kádas fürdőszoba, külön WC, konyha, kamra, étkező, valamint előszoba teszik teljessé a praktikus alaprajzot. A lakás a 2. emeleten található, egy liftes, rendezett társasházban, így idősek és családok számára is kényelmes választás. Kiváló elhelyezkedés és infrastruktúra Oktogon, Hősök tere, Városliget és az Állatkert rövid sétatávolságra Közelben boltok, cukrászdák, iskolák, óvodák, bölcsődék Kiváló tömegközlekedés: 72-es és 75-ös troli 5-ös busz kisföldalatti (M1) ✨ Kinek ajánlom? Akik klasszikus városi miliőt keresnek kiváló közlekedéssel Családoknak, akik szeretnének külön hálószobákat és praktikus elosztást Befektetőknek, akik értékelik a belváros közelségét és a stabil bérbeadási lehetőséget
https://ingatlanok.hu/elado/lakas/budapest-vi-ker/110-millio-ft;71-negyzetmeter;3-szoba;tegla-epitesu/11570382