Az értékesítő:
Vargová Eva
+36 70 427 7702

Eladó lakás Budapest III. ker, 148 900 000 Ft, 75 négyzetméter

148 900 000 Ft
lakás, 75 négyzetméter
Építőanyag:
Tégla
Egész szobák:
3
Komfort fokozat:
Összkomfort
Ingatlan állapota:
Kitűnő
Azonosító:
11570384
Értékesítés típusa:
eladó
Ingatlan típusa:
lakás
Település:
Budapest III. ker
Alapterület:
75
Ár:
148 900 000 Ft
Tulajdonviszony:
Saját
Emelet:
1. emelet
Fűtés jellege:
Hőszivattyú
Kilátás:
udvari
Építési év:
Új építésű
Erkély:
Van
Pince:
Nincs
Tároló:
Nincs
Lift:
Nincs
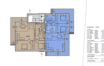
Oázis Óbuda szívében – Napsütötte teraszok, elegáns otthonok, kertvárosi. Alapterület: 75,87 m² Teraszok összesen: 38,66 m² Összesen: 94,84 m² Ár: 147 M Ft A teremgarázs ára 8 M Ft, melyet kötelező megvenni. Energetikai besorolás: A+ A beruházásról: A Kisbojtár Projekt a III. kerület egyik legkedveltebb részén, a Bojtár utca és a Kisbojtár utca találkozásánál helyezkedik el. A Bécsi és Szentendrei utak között fekvő, barátságos lakóövezet csendes kertvárosi hangulatot és kiváló közlekedési lehetőségeket kínál Bölcsőde, óvoda, iskolák, valamint több szuper- és hipermarket néhány perc alatt elérhetők — mindezt egy meghitt, nyugodt környezetben, amely ideális választás az igényes otthonkeresők számára. Az épület és a lakások A projekt két épületében összesen 8 lakás épült: 63 m²-től a 83 m²-es penthouse lakásig Földszinten kertkapcsolatos lakások Emeleteken tágas teraszok Legfelső szinteken különleges kialakítású otthonok A pinceszinten kényelmes teremgarázsbeállók és közös gépészeti helyiségek találhatók. Az épületeket világos terek, átgondolt alaprajzok, esztétikus és praktikus kialakítás jellemzi. Műszaki tartalom A+ energetikai besorolás Daikin levegő–levegő hőszivattyús fűtés, padlófűtéssel Szobánként 1-1 hűtő-fűtő fancoil 5 légkamrás, 3 rétegű nyílászárók Elektromos alumínium redőny előkészítés Nagylapos fürdőszobai burkolatok 15 cm kőzetgyapot homlokzati szigetelés A korszerű gépészet és szigetelés egész évben kellemes belső klímát biztosít alacsony fenntartási költségek mellett. A kínált lakás: Ez a napfényes, első emeleti, 75,87 m²-es lakás két nagy méretű terasszal (összesen 38,66 m²) rendelkezik, így ideális választás azoknak, akik szeretik a tágas, világos tereket és a szabadtéri életteret. A lakás azonnal beköltözhető, per- és tehermentes. Ár: 147 M Ft Garázs külön megvásárolható: 8 M Ft
https://ingatlanok.hu/elado/lakas/budapest-iii-ker/149-millio-ft;75-negyzetmeter;3-szoba;tegla-epitesu/11570384