Az értékesítő:
László István
+36 30 638 1550

Eladó lakás Budapest XII. ker, 130 000 000 Ft, 100 négyzetméter

130 000 000 Ft
lakás, 100 négyzetméter
Építőanyag:
Tégla
Egész szobák:
2
Komfort fokozat:
Dupla komfort
Ingatlan állapota:
Felújítandó
Azonosító:
11570463
Értékesítés típusa:
eladó
Ingatlan típusa:
lakás
Település:
Budapest XII. ker
Alapterület:
100
Ár:
130 000 000 Ft
Tulajdonviszony:
Saját
Emelet:
1. emelet
Fűtés jellege:
Egyéb
Kilátás:
panorámás
Építési év:
50 évesnél régebbi
Erkély:
Van
Pince:
Nincs
Tároló:
Nincs
Lift:
Nincs
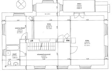
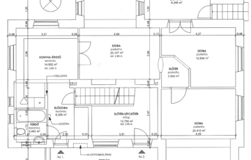
Eladásra kínálunk Kútvölgy kedvelt részén egy Ősfás 1100 m2 területen elhelyezkedő patinás házban található 100 m2 panorámás lakást. Az ingatlanhoz 150-200 m2 kertrész is tartozik. A 2 szobás 100 m2-es lakás az épület első emeltén helyezkedik el. Lakás elrendezése: Földszint: • Lépcsőház - gardrob 12,7 m2 • Tornác 5,5 m2 Emelet: • 2 db. szoba 20,1 m2 + 28,7 m2 • Közlekedő -dolgozó sarok 16,47 m2 • Konyha 12,2 m2 • Fürdőszoba 4,8 m2 • Erkély 7 m2 Kert: • 150 - 200 m2 kertrész A ház 1940-ben épült 55 cm vastag téglafalakkal. Az épület szerkezetileg jó állapotú – feljutása és korszerűsítése esedékes. Az ingatlant fiatal pároknak -családoknak egyaránt ajánljuk. A társasházban párhuzamosan kerül értékesítésre a hírdetésben szereplő 100 m2 és az az alatta található 93 m2 db.földszinti lakás. Amennyiben Önnek a vásárláshoz szüksége lenne hitelre egyedi kedvezménnyel,kezdeményezheti a kapcsolatfelvételt bankfüggetlen hitelügyintézőinkkel, teljesen DÍJMENTESEN. Az ingatlan részletes ismertetése és bemutatása előre egyeztetett időpontban lehetséges, melyet nagyon rugalmasan kezelünk, akár HÉTVÉGÉN is. Amennyiben felkeltette az érdeklődését, további kérdéseivel kapcsolatban várom jelentkezését!
https://ingatlanok.hu/elado/lakas/budapest-xii-ker/130-millio-ft;100-negyzetmeter;2-szoba;tegla-epitesu/11570463