Az értékesítő:
László István
+36 30 638 1550

Eladó lakás Budapest XII. ker, 169 000 000 Ft, 93 négyzetméter

169 000 000 Ft
lakás, 93 négyzetméter
Építőanyag:
Tégla
Egész szobák:
4
Komfort fokozat:
Dupla komfort
Ingatlan állapota:
Felújítandó
Azonosító:
11570464
Értékesítés típusa:
eladó
Ingatlan típusa:
lakás
Település:
Budapest XII. ker
Alapterület:
93
Ár:
169 000 000 Ft
Tulajdonviszony:
Saját
Emelet:
Földszint
Fűtés jellege:
Cirkó
Kilátás:
panorámás
Építési év:
Új építésű
Erkély:
Van
Pince:
Van
Tároló:
Nincs
Lift:
Nincs
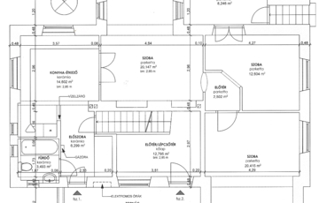
Eladásra kínálunk Kútvölgy kedvelt részén egy Ősfás 1100 m2 területen elhelyezkedő patinás házban elhelyezkedő 93 m2 lakást mely 250 m2-es közvetlen kertkapcsolattal rendelkezik. A 93 m2-es lakás az épület földszintjén helyezkedik el. Lakás elrendezése: Földszint: • 3 db. 20,1 - 20,1 - 12,6 m2, 12,6 m2 szoba, + 8,2 m2 télikert • Konyha - étkező 14,6 m2 • Fürdőszoba 6,2 m2 • Közlekedő 6,2 m2 • Tornác 5,5 m2 Tároló - pince: • 30 m2 Kert: • Közvetlen 250-300 m2 kertrész + kerti kemence • Kocsibeálló 2 autónak is kialakitható terület A ház 1940-ben épült 55 cm vastag téglafalakkal. Az épület szerkezetileg jó állapotú – feljutása és korszerűsítése esedékes. Az ingatlant fiatal pároknak -családoknak egyaránt ajánljuk. A társasházban párhuzamosan kerül értékesítésre a hirdetésben szereplő 93 m2 és a felette található 100 db. első emeleti lakás. Amennyiben Önnek a vásárláshoz szüksége lenne hitelre egyedi kedvezménnyel,kezdeményezheti a kapcsolatfelvételt bankfüggetlen hitelügyintézőinkkel, teljesen DÍJMENTESEN. Az ingatlan részletes ismertetése és bemutatása előre egyeztetett időpontban lehetséges, melyet nagyon rugalmasan kezelünk, akár HÉTVÉGÉN is. Amennyiben felkeltette az érdeklődését, további kérdéseivel kapcsolatban várom jelentkezését!
https://ingatlanok.hu/elado/lakas/budapest-xii-ker/169-millio-ft;93-negyzetmeter;4-szoba;tegla-epitesu/11570464