Az értékesítő:
Völgyi Klári
+36 30 231 5758

Eladó lakás Bicske, 84 900 000 Ft, 68 négyzetméter

84 900 000 Ft
lakás, 68 négyzetméter
Építőanyag:
Tégla
Egész szobák:
4
Komfort fokozat:
Összkomfort
Ingatlan állapota:
Kitűnő
Azonosító:
11570572
Értékesítés típusa:
eladó
Ingatlan típusa:
lakás
Település:
Bicske
Alapterület:
68
Ár:
84 900 000 Ft
Kilátás:
udvari
Erkély:
Van
Kertkapcsolat:
Van
Kocsibeálló:
Nincs
Tároló:
Nincs
Lift:
Nincs
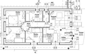
Eladó Bicske kertvárosi részén egy földszintes, Nappali + 3 hálószobás, nettó 69,2 nm-es családi ház a hozzá tartozó kb. 300 nm-es telekkel. Műszaki paraméterek: 30-as ytong falazat rajta 10 cm dryvit szigeteléssel Beton tetőcserép 3 rétegű műanyag fehér nyílászárók Minden helyiségben padlófűtés hőszivattyús rendszerrel H-tarifás villanyóra Elektromos redőny 1 db inverteres klíma Motors kertkapu A telek osztott tulajdonú, társasházi alapító okirattal kerül átadásra. Az ingatlan utcafrontról megközelíthető. A ház megfelel az új CSOK Plusz feltételeinek, illetve igénybe vehető rá a az Otthon Start hitel is, így különösen jó lehetőség azoknak, akik saját elképzeléseik alapján szeretnék kialakítani otthonukat. Az ingatlan kedvező elhelyezkedése és infrastruktúrája, rendkívül vonzóvá teszi. Több útvonalon is megközelíthető Budapest. Bankfüggetlen hitel tanácsadónk díjmentesen áll az Ön rendelkezésére! Keressen bizalommal! A hirdetésben szereplő adatok, információk, képek, alaprajzok stb... tájékoztató jellegűek! Irodánk az esetleges elírásokért felelősséget nem tud vállalni! Tájékoztatjuk a Tisztelt Érdeklődőket, hogy az ingatlan hirdetésében szereplő telefonszám felhívásával Önök hozzájárulnak személyes adataik (név, telefonszám), a hirdetést feladó Kft. - által a bizalmas kezeléshez és nyilvántartáshoz. További információért hívjon bizalommal a hét minden napján! Köszönöm, hogy időt szánt hirdetésemre, sikeres ingatlanvásárlást kívánok!
https://ingatlanok.hu/elado/lakas/bicske/85-millio-ft;68-negyzetmeter;4-szoba;tegla-epitesu/11570572