Az értékesítő:
Csiszér Jolán
+36 30 894 4070

Eladó lakás Budapest IX. ker, 82 990 000 Ft, 38 négyzetméter

82 990 000 Ft
lakás, 38 négyzetméter
Építőanyag:
Tégla
Egész szobák:
1
Komfort fokozat:
Összkomfort
Ingatlan állapota:
Felújított
Azonosító:
11570831
Értékesítés típusa:
eladó
Ingatlan típusa:
lakás
Település:
Budapest IX. ker
Alapterület:
38
Ár:
82 990 000 Ft
Tulajdonviszony:
Saját
Emelet:
3. emelet
Fűtés jellege:
Hőszivattyú
Kilátás:
utcai
Építési év:
50 évesnél régebbi
Erkély:
Van
Pince:
Van
Tároló:
Nincs
Lift:
Van
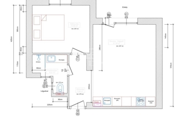
Eladó egy felújított, téglaépítésű lakás IX. ker. Budapest Rehabilitációs részén csendes környezetben, a Vaskapu utcában. A lakás a harmadik emeleten helyezkedik el, és 38 négyzetméter alapterületű. Az ingatlanban egy 1+1 szobás elrendezés található. A fűtést hőszivattyú biztosítja, ami korszerű és energiatakarékos megoldás(H tarifa). A melegvízellátást villanybojler biztosítja. Az ingatlannak 3 négyzetméteres erkélye van, ahonnan utcai kilátás nyílik. A lakás teljes felújításon esett át, beépített konyhával és garanciális gépezettel, így az új tulajdonos azonnal költözhet. A házban biciklitároló van, 2nm zárt pince is tartozik a lakáshoz. ID.388224
https://ingatlanok.hu/elado/lakas/budapest-ix-ker/83-millio-ft;38-negyzetmeter;2-szoba;tegla-epitesu/11570831