Az értékesítő:
Bajzák Gergely
+36 30 308 7480

Eladó családi ház Budapest XVIII. ker, 147 000 000 Ft, 157 négyzetméter

147 000 000 Ft
családi ház, 157 négyzetméter
Építőanyag:
Tégla
Egész szobák:
5
Komfort fokozat:
Dupla komfort
Ingatlan állapota:
Kitűnő
Azonosító:
11570915
Értékesítés típusa:
eladó
Ingatlan típusa:
családi ház
Jelleg:
Ikerház
Település:
Budapest XVIII. ker
Alapterület:
157
Telekterület:
363
Ár:
147 000 000 Ft
Kor:
Új építésű
Terasz:
Van
Erkély:
Nincs
Telekterület típusa:
négyzetméter
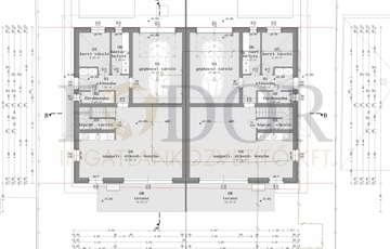
Pestszentimrén, Újpéteri telepen – vadonatúj, energiatakarékos ikerházak eladók! Ha modern, kényelmes és hosszú távon gazdaságos otthont keresel a XVIII. kerület egyik legnyugodtabb részén, ez a lehetőség neked szól! Egy újonnan épülő ikerház mindkét fele elérhető, saját, 363 m²-es leválasztott telekrésszel, intim kerttel és teljesen önálló bejárattal. Az ingatlanok összesen közel 150 m² hasznos alapterületűek, átgondolt, családbarát elrendezéssel. A földszinten egy tágas, 46 m²-es amerikai konyhás nappali-étkező kapott helyet, amely közvetlenül a 18 m²-es, burkolt teraszra nyílik – tökéletes helyszín a reggeli kávéhoz vagy a nyári vacsorákhoz. Ezen a szinten található még egy vendégszoba, fürdő, háztartási helyiség, tároló és 25 m²-es, motoros kapuval ellátott garázs. Az emelet három különnyíló hálószobát, gardróbot és egy tágas, kádas fürdőszobát kínál. A praktikus elrendezésnek köszönhetően minden családtag megtalálhatja a saját nyugodt zugát. A ház kulcsrakészen, választható burkolatokkal, szaniterekkel és belső ajtókkal kerül átadásra – így te döntheted el, milyen stílusban születik meg az új otthonod. Főbb extrák, amiket az ár tartalmaz: • modern hőszivattyús fűtési rendszer és padlófűtés minden szinten • 3 rétegű nyílászárók, motoros alumínium redőnnyel és szúnyoghálóval • Hörmann motoros garázskapu • alap riasztórendszer kiépítése • burkolt terasz, térkövezett beálló és motoros nagykapu • energiatakarékos, korszerű építési megoldások • 5 db klíma kiállás előkészítése • 15 cm homlokzati dryvit hőszigetelés Építés kezdete: 2025. november Várható átadás: 2026. III. negyedév Megbízható, tőkeerős, tapasztalt kivitelezőtől, referencia házakkal a közelben. CSOK Plusz, Babaváró és 3%-os otthon start hitel igénybe vehetők, így a finanszírozás is gördülékeny. Egy valódi, modern családi otthon vár rád, ahol minden részlet a kényelmet és az energiatakarékosságot szolgálja. Részletesebb tájékoztatásért és bővebb műszaki tartalomért keressen bizalommal.
https://ingatlanok.hu/elado/haz/budapest-xviii-ker/147-millio-ft;157-negyzetmeter;5-szoba;nincs-megadva-futes/11570915