Az értékesítő:
Kránicz Éva
+36 70 377 4392

Eladó családi ház Nagyszokoly, 26 900 000 Ft, 107 négyzetméter

26 900 000 Ft
családi ház, 107 négyzetméter
Építőanyag:
Tégla
Egész szobák:
3
Komfort fokozat:
Összkomfort
Ingatlan állapota:
Azonosító:
11571056
Értékesítés típusa:
eladó
Ingatlan típusa:
családi ház
Jelleg:
Családi ház
Település:
Nagyszokoly
Alapterület:
107
Telekterület:
5027
Ár:
26 900 000 Ft
Szintek száma:
Földszintes
Fűtés jellege:
Házközponti
Kor:
21-50 éves
Telekterület típusa:
négyzetméter
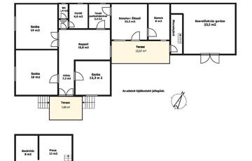
Nagyszokolyon, Siófoktól mindössze 30 km-re, csendes falusi környezetben eladó egy tehermentes, azonnal beköltözhető, kiváló állapotú, hőszigetelt, 127 m2-es, kádár kocka jellegű téglaház. Az ingatlan három szobás, étkezős, külön konyhás, valamint két fedett terasszal és alagsorral rendelkezik, ahol a kazánház és a tüzelőtároló kapott helyet. A tetőtér beépítésére a lehetőség szintén rendelkezésre áll. A fűtés vegyes tüzelésű kazánról és gázkazánról üzemeltethető. Az épülethez csatlakozik egy 24 m2-es, szerelőaknás garázs, valamint több melléképület: terménytároló, sertésól, istálló és füstölő, melyek mind beton alapon, téglafalazattal épültek, és jó állapotban vannak. A fa nyílászárók redőnnyel ellátottak, az épülethez új csatornarendszer tartozik. Az udvar és a kert rendezett, gondozott, jól karbantartott. A 5027 m2-es telek fele szántó, így az ingatlan kiválóan alkalmas gazdálkodásra, állattartásra vagy kertészkedésre. A házban 380 V ipari áram is be van vezetve, szerkezeti és műszaki állapota ideális, a tulajdoni viszonyok rendezettek. Az ingatlan megfelel az Otthon Start program és a falusi CSOK feltételeinek, így fiatal családoknak, gazdálkodni vágyóknak vagy nyugodt vidéki életet keresőknek is megfelelő választás. Referencia szám: M314208
https://ingatlanok.hu/elado/haz/nagyszokoly/27-millio-ft;107-negyzetmeter;3-szoba;hazkozponti-futes/11571056