Eladó lakás Pécs, 109 900 000 Ft, 102 négyzetméter
        
            
                
                    
                        109 900 000 Ft
                        
                            lakás, 102 négyzetméter                        
                                                    
                                                    
                                                    
                                Ingatlan állapota: 
                                Kitűnő
                             
                                                    
                                                    
                                Értékesítés típusa: 
                                eladó
                             
                                                    
                                                    
                                                    
                                                    
                                                    
                                                    
                                                    
                                                    
                        
                     
                 
                
             
         
        
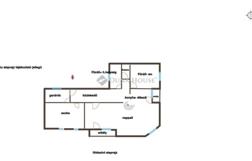
                            Eladó belvárosi, tágas téglalakás Pécs szívében!Pécs belvárosában kínálunk megvételre egy 102 nm-es, galériás téglalakást, amely tökéletes választás lehet családoknak vagy akár befektetés céljára is. Az ingatlan főbb jellemzői:- Amerikai konyhás nappali + 3 szoba- 2 fürdőszoba, 2 Wc- 2 erkély, amelyek kellemes kikapcsolódási lehetőséget biztosítanak- gáz- cirkó fűtés, alacsony fenntartási költséggel- tágas, világos terek és praktikus elosztás - galériás kialakítás, ami különleges hangulatot kölcsönöz az otthonnak.Az ingatlan kiváló elhelyezkedésének köszönhetően minden fontos szolgáltatás, bolt iskola, egyetem, valamint a  belváros pezsgő élete néhány perc sétával elérhető.Amennyiben egy egyedi, jól alakítható, nagy alapterületű belvárosi otthont keresel, ez a lakás remek lehetőség!                    
        
            https://ingatlanok.hu/elado/lakas/pecs/110-millio-ft;102-negyzetmeter;4-szoba;tegla-epitesu/11571266