Eladó lakás Pécs, 109 900 000 Ft, 102 négyzetméter
        
            
                
                    
                        109 900 000 Ft
                        
                            lakás, 102 négyzetméter                        
                                                    
                                                    
                                                    
                                Ingatlan állapota: 
                                Kitűnő
                             
                                                    
                                                    
                                Értékesítés típusa: 
                                eladó
                             
                                                    
                                                    
                                                    
                                                    
                                                    
                                                    
                                                    
                                                    
                        
                     
                 
                
             
         
        
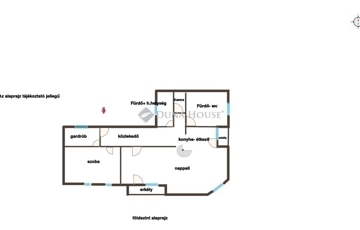
                            Pécs szívében, a Mária utcában kínálunk megvételre egy 138 m²-es, földszinti, tágas elrendezésű, 3 külön nyíló hálószobás + nappalis lakást közvetlen kertkapcsolattal.
 Az ingatlan igény szerint kocsibeállóval is megvásárolható.
--Főbb jellemzők:
- Nettó alapterület: 138 m²
- Földszinti elhelyezkedés,
- közvetlen kertkapcsolattal
- 3 külön nyíló hálószoba + nappali
- Tágas fürdőszoba káddal és zuhanyzóval
- Külön vendég-WC
- Klímaberendezés
- Több tárolóhelyiség a lakás szintjén és az alagsorban
- Gardrób
Csendes, belvárosi elhelyezkedés A lakáshoz külön megvásárolható teremgarázs-beálló tartozik a szemközti társasházban, 7.000.000 Ft áron. 
Kinek ajánljuk? Ideális nagyobb családoknak, belvárost kedvelőknek, vagy akár irodai célra is, mivel az elhelyezkedés és a tágas terek sokféle hasznosítást lehetővé tesznek. 
 További információért vagy megtekintésért keressen bizalommal!
Érdeklődjön akár hétvégén/ünnepek alatt is!
Csendes Zalán: 06304710917
Referencia szám: LK053503                    
        
            https://ingatlanok.hu/elado/lakas/pecs/110-millio-ft;102-negyzetmeter;4-szoba;tegla-epitesu/11571328