Az értékesítő:
Tóth Ildikó
+36 30 261 7523

Eladó családi ház Szeged, 199 900 000 Ft, 200 négyzetméter

199 900 000 Ft
családi ház, 200 négyzetméter
Építőanyag:
Tégla
Egész szobák:
7
Fűtés módja:
Gáz
Ingatlan állapota:
Azonosító:
11571342
Értékesítés típusa:
eladó
Ingatlan típusa:
családi ház
Jelleg:
Családi ház
Település:
Szeged
Alapterület:
200
Telekterület:
1453
Ár:
199 900 000 Ft
Szintek száma:
Földszintes
Fűtés jellege:
Cirkó
Kor:
21-50 éves
Erkély:
Van
Telekterület típusa:
négyzetméter
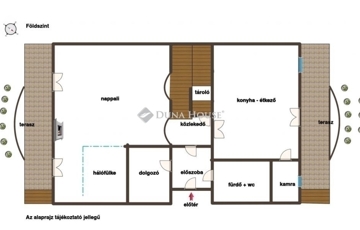
BÉKÉS, CSENDES KÖRNYEZETBEN – TELJESEN FELÚJÍTOTT CSALÁDI HÁZ + MELLÉKÉPÜLET ELADÓ SZEGED-BAKTÓN! Szeged-Baktó egyik kedvelt utcájában, igényes házak szomszédságában kínálunk eladásra egy napfényes, kétszintes, két különálló lakrésszel rendelkező családi házat, valamint egy 45 m²-es, szintén felújított melléképületet, 1453 m²-es telken. Főbb jellemzők: Teljes körű felújítás (2020), korszerű gépészet, hőszigetelt nyílászárók Két szinten összesen ~166 m² lakótér, külön bejáratú lakrészekkel Kandalló, gáz cirkó, konvektor, inverteres klíma Melléképület 2 szobával, konyhával, fürdővel Szép, parkosított kert automata öntözőrendszerrel, fúrt kúttal 16 m²-es garázs, loggiák, teraszok Lehetőség 700 m²-es építési telek leválasztására Nyugodt, zöldövezeti környék, jó infrastruktúrával, kerékpárúttal és buszmegállóval a közelben. Ideális választás nagycsaládosoknak, összeköltözőknek vagy befektetőknek! Ha felkeltette érdeklődését, hívjon bizalommal!
https://ingatlanok.hu/elado/haz/szeged/200-millio-ft;200-negyzetmeter;8-szoba;cirko-futes/11571342