Az értékesítő:
Dankos Andrea
+36 70 388 6031

Eladó családi ház Téglás, 76 500 000 Ft, 93 négyzetméter

76 500 000 Ft
családi ház, 93 négyzetméter
Egész szobák:
4
Ingatlan állapota:
Kitűnő
Azonosító:
11571365
Értékesítés típusa:
eladó
Ingatlan típusa:
családi ház
Jelleg:
Családi ház
Település:
Téglás
Alapterület:
93
Telekterület:
600
Ár:
76 500 000 Ft
Fűtés jellege:
Cirkó
Terasz:
Nincs
Erkély:
Van
Melléképület:
Nincs
Pince:
Nincs
Parketta:
Nincs
Kábel TV:
Nincs
Telekterület típusa:
négyzetméter
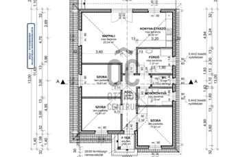
Új építésű, modern családi házat keres egy nyugodt, de dinamikusan fejlődő környéken? Téglás kertvárosi részén, egy új házakkal beépülő utcában várja Önt egy korszerű, energiatakarékos otthon, amely 2026 tavaszán már birtokba vehető. Az egyszintes, 93 m²-es családi ház átgondolt alaprajzzal készül: - tágas nappali (25 m²) - külön konyha-étkező (10,8 m²) - három kényelmes hálószoba - fürdőszoba és külön WC - praktikus mosókonyha A nappali közvetlen kijárattal kapcsolódik a 17 m²-es teraszhoz, amely a mindennapok kényelmét szolgálja. A 603 m²-es telek bőséges lehetőséget kínál kert, játszótér vagy pihenőterület kialakítására. Korszerű, energiatakarékos megoldások: - gáz-cirkós fűtés padlófűtéssel - 4 db hőszivattyús klíma (a nappaliban és mindhárom hálószobában) - 3 rétegű hőszigetelt nyílászárók, elektromos redőnyök - 15 cm vastag szigetelés, amely alacsony rezsit garantál - 6 kW napelem rendszer a fenntartható energiaellátásért, inverterrel 11kW-ig fejleszhető - 2,7 méteres belmagasság, amely világos és tágas tereket biztosít - két autó beállási lehetősége a telken belül Ez az otthon hosszú távon kényelmes, fenntartható és biztonságos választás, egy olyan utcában, ahol sorra épülnek az új házak, így egy egészen új, barátságos lakókörnyezet formálódik. Ha Ön is egy új, alacsony fenntartású és korszerű otthont szeretne Téglás egyik leggyorsabban fejlődő utcájában, keressen minket bizalommal a részletekért!
https://ingatlanok.hu/elado/haz/teglas/77-millio-ft;93-negyzetmeter;4-szoba;cirko-futes/11571365