Az értékesítő:
Nagy Barbara
+36 70 490 7364

Eladó családi ház Gödöllő, 109 800 000 Ft, 94 négyzetméter

109 800 000 Ft
családi ház, 94 négyzetméter
Építőanyag:
Tégla
Egész szobák:
4
Komfort fokozat:
Összkomfort
Fűtés módja:
Hőszivattyú
Ingatlan állapota:
Kitűnő
Azonosító:
11571475
Értékesítés típusa:
eladó
Ingatlan típusa:
családi ház
Jelleg:
Ikerház
Település:
Gödöllő
Alapterület:
94
Telekterület:
464
Ár:
109 800 000 Ft
Szintek száma:
Földszintes
Fűtés jellege:
Geotermikus
Kor:
Új építésű
Terasz:
Van
Pince:
Nincs
Telekterület típusa:
négyzetméter
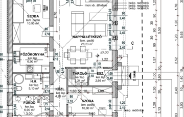
Töltsd az új otthonodban a karácsonyt! Eladásra kínálok Gödöllőn a kertvárosban, Kiralytelep varosrészen, egy újépítésű. egyszintes, nettó 92.58 m2-es ( + 10 m2 terasz), amerikai konyhás nappali + 3 hálószobás ikerházfelet, amely 464 m2 kizárólagos használatú telekrésszel rendelkezik! Átadás:2025.december!!! Helyiséglista: - teraszkapcsolatos nappali/konyha/étkező (28.23 + 6.90 = 35.13 m2) - terasz (10.00 m2) - 3 hálószoba (10.95, 10.80, 21.85 m2) - fürdőszoba (6.90 m2) - háztartási helyiség/2. fürdőszoba (5.10 m2) - gardrób (3.00 m2) - tároló (2.24 m2) - közlekedő (4.95 m2) - előszoba (2.66 m2) Az árba tetszőleges mobilgarázs tartozik! Az ingatlan Leierplan 30 síkracsiszolt, ragasztott falazattal épül 15 cm homlokzati szigeteléssel, beton födémmel, a födémen 25 cm üveggyapot szigeteléssel, beton cseréppel, 3 rétegű, 5 légkamrás hőszigetelt nyílászárókkal. A fűtésről hőszivattyú gondoskodik minden helyiségben padlófűtéssel, a fürdőkben kiegészítő törölközőszárítós radiátorral. A két ikerfél között dupla hanggátló falazat épült! Hívjon bizalommal! Tekintsük meg együtt!
https://ingatlanok.hu/elado/haz/godollo/110-millio-ft;94-negyzetmeter;4-szoba;geotermikus-futes/11571475